Charmante maison familiale d'environ 203m2

— Saran 45770 —
249 000 €
203 m² / 1 376 m²
6 pièces
balcon/terrasse

Découvrez cette superbe maison familiale au charme indéniable, où pierres apparentes, colombages et authenticité se mêlent harmonieusement.

Nichée dans un quartier calme et recherché de Saran, cette propriété offre cinq chambres, dont une située au rez-de-chaussée, idéale pour les besoins de chacun.

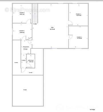
Le rez-de-chaussée se compose d'une grande pièce de vie d'environ 37 m², baignée de lumière, d'une cuisine indépendante, d'un bureau, d'une salle de bains, ainsi que de toilettes séparées.

À l'étage, un vaste palier de plus de 40 m², offrant de nombreuses possibilités d'aménagement, dessert quatre chambres supplémentaires, une salle d'eau avec toilettes, ainsi qu'un grenier.

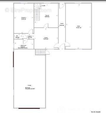
Une dépendance attenante à la maison présente un fort potentiel. Elle peut accueillir un ou deux véhicules, ou être transformée en une habitation totalement indépendante, idéale pour une profession libérale ou un investissement locatif.

Les amateurs de vin seront séduits par la belle cave voûtée d'environ 80 m², parfaite pour conserver et déguster vos plus belles bouteilles.

Le terrain clos de 1 356 m² offre un vaste espace extérieur, propice à la création de multiples espaces de loisirs selon vos envies.

VISITE VIRTUELLE DISPONIBLE SUR DEMANDE

Cette annonce référence 248976 vous est présentée par votre agent commercial BSK Immobilier CHARLOTTE DENIS (EI) immatriculé au RSAC de ORLEANS (45000) sous le numéro 92755997100019.

Prix du bien : 249 000,00 €
Les honoraires d'agence sont à la charge du vendeur.

A propos des performances énergétiques :
Date de réalisation du diagnostic énergétique : 05/08/2024
Score DPE : 147 kWhEP/m²/an
Score GES : 31 kgepCO2/m²/an
Montant estimé des dépenses annuelles d'énergie pour un usage standard : entre 2660.00 € et 3640.00 € par an. Prix moyens des énergies indexés sur l'année 2021 (abonnements compris).

Les informations sur les risques auxquels ce bien est exposé sont disponibles sur le site Géorisques : www.georisques.gouv.fr
Voir plus

Référence: 248976
Honoraires à la charge du vendeur.
DPE
A
B
C
D
E
F
G
GES
A
B
C
D
E
F
G

Prêt immobilier

Vous souhaitez connaître votre capacité d’emprunt et trouver le meilleur crédit immobilier ?
Réaliser une simulation gratuite

Maison à SARAN
Maison à SARAN
Maison à SARAN
Maison à SARAN
Maison à SARAN
Maison à SARAN
Maison à SARAN
Maison à SARAN
Maison à SARAN
Maison à SARAN
Maison à SARAN
Maison à SARAN
Ce site est protégé par reCAPTCHA la Politique de confidentialité et les Conditions d’utilisation de Google s’appliquent.
Obtenir un prêt immobilier au meilleur taux ?

En poursuivant votre navigation sans modifier vos paramètres, vous acceptez l'utilisation de cookies susceptibles de réaliser des statistiques de visite. Cliquez ici pour plus d'informations