Bénéficiez des services de nos partenaires locaux soigneusement sélectionnés
pour vous accompagner dans votre parcours d'achat immobilier

Vente appartement lumio(20260) 270 000ᅵ

— Lumio 20260 —
270 000 €
50 m²
3 pièces

Nos partenaires locaux
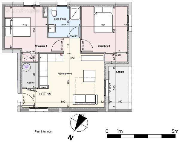
T3 au coeur de la marine de sant'ambroggio c'est au coeur de la marine de sant'ambroggio, idéalement situé à proximité des commerces et de la plage que se trouve ce t3 au 1er et dernier étage. il dispose d'une cuisine ouverte sur le séjour, de deux chambres, d'une salle d'eau avec wc, d'un cellier. n'hésitez pas à nous contacter pour plus d'information, lauranne maljean [Coordonnées masquées] [Coordonnées masquées]

Référence: PROGRAMME NEUF SANT'AMBROGGIO

Prêt immobilier

Vous souhaitez connaître votre capacité d’emprunt et trouver le meilleur crédit immobilier ?
Réaliser une simulation gratuite

Appartement à LUMIO
Appartement à LUMIO
Appartement à LUMIO
Appartement à LUMIO
Ce site est protégé par reCAPTCHA la Politique de confidentialité et les Conditions d’utilisation de Google s’appliquent.
Obtenir un prêt immobilier au meilleur taux ?

En poursuivant votre navigation sans modifier vos paramètres, vous acceptez l'utilisation de cookies susceptibles de réaliser des statistiques de visite. Cliquez ici pour plus d'informations