Bénéficiez des services de nos partenaires locaux soigneusement sélectionnés
pour vous accompagner dans votre parcours d'achat immobilier

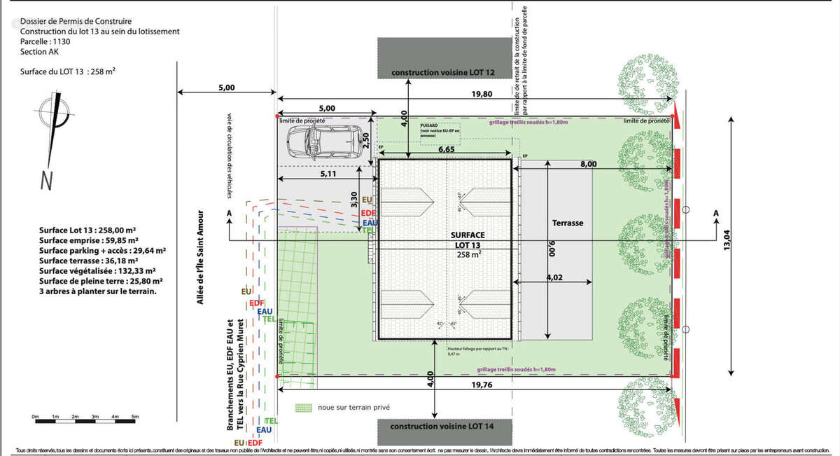
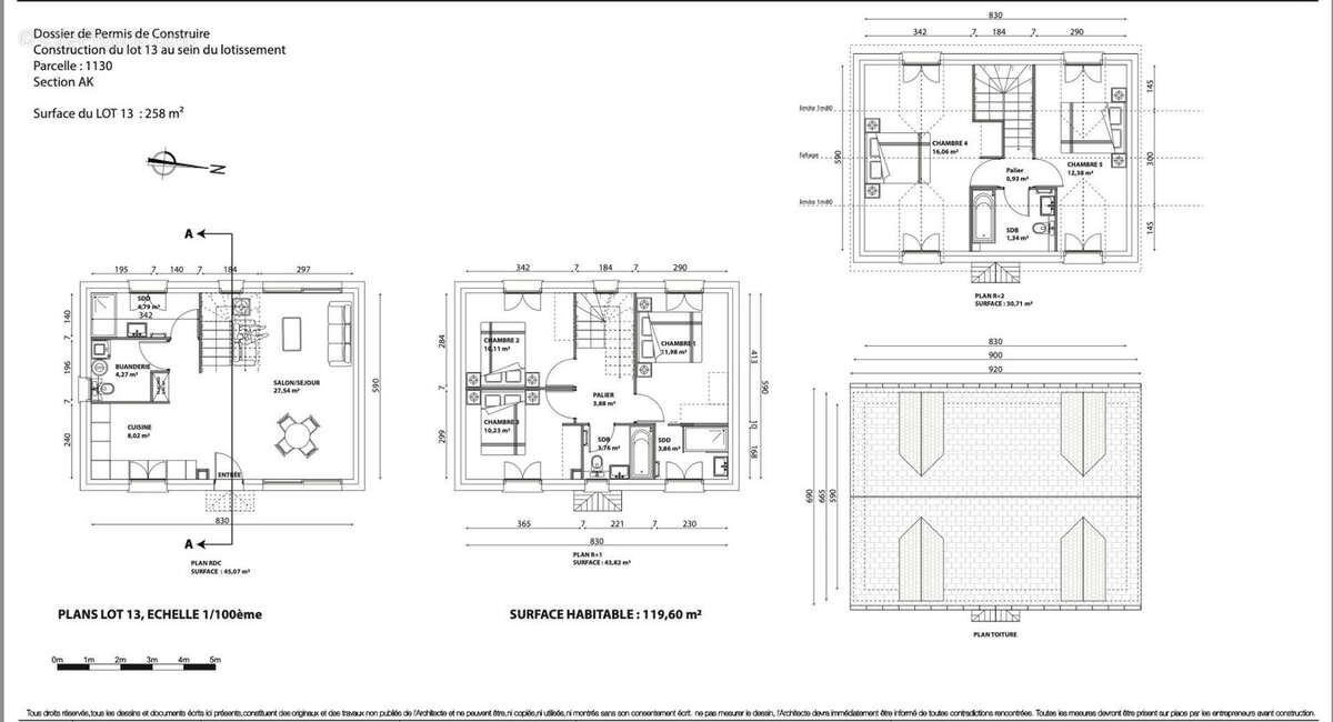
Terrain 258m² à palaiseau

— Palaiseau 91120 —
185 000 €
258 m²
jardin

Nos partenaires locaux
TERRAIN À BÂTIR VIABILISÉ / PLAT / IDÉAL PREMIER ACHAT / POSSIBILITÉ MAISON 120M2 AVEC 5 CHAMBRES / CONSTRUCTEUR LIBRE / RÉELLE OPPORTUNITÉ

NOUVEAUTÉ ET EXCLUSIVITÉ, votre agence ERA Palaiseau vous propose la vente d'un terrain à bâtir VIABILISÉ d'une surface d'environ 258m2.

Situé sur la commune de VILLEBON-SUR-YVETTE, à la limite de PALAISEAU, proche de toutes les commodités (RER B, commerces et écoles), au sein d'un environnement VERDOYANT.

Dans un lotissement de 15 lots (pas de copropriété), le terrain est plat, aménagé et viabilisé, il ne reste plus qu'à construire votre maison. PERMIS DE CONSTRUIRE ACCEPTÉ pour réaliser un R+1+combles d'une surface d'environ 120m2 habitable. CONSTRUCTEUR LIBRE.

Pour plus d'informations et documents concernant l'achat de ce terrain à bâtir, contacter notre agence Era Palaiseau au [Coordonnées masquées].
Voir plus

Référence: 2979

Prêt immobilier

Vous souhaitez connaître votre capacité d’emprunt et trouver le meilleur crédit immobilier ?
Réaliser une simulation gratuite

Terrain à PALAISEAU
Terrain à PALAISEAU
Terrain à PALAISEAU
Terrain à PALAISEAU
Terrain à PALAISEAU
Terrain à PALAISEAU
Terrain à PALAISEAU
Terrain à PALAISEAU
Terrain à PALAISEAU
Terrain à PALAISEAU
Ce site est protégé par reCAPTCHA la Politique de confidentialité et les Conditions d’utilisation de Google s’appliquent.
Obtenir un prêt immobilier au meilleur taux ?

En poursuivant votre navigation sans modifier vos paramètres, vous acceptez l'utilisation de cookies susceptibles de réaliser des statistiques de visite. Cliquez ici pour plus d'informations