Bénéficiez des services de nos partenaires locaux soigneusement sélectionnés
pour vous accompagner dans votre parcours d'achat immobilier

Déficit foncier loi denormandie frais de notaire réduits

— Beziers 34500 —
392 000 €
90 m²
5 pièces

Nos partenaires locaux
Déficit foncier Loi Denormandie Frais de notaire réduits

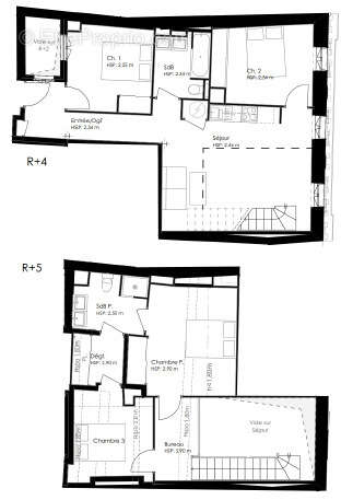
Un bien d'exception au cœur du centre-ville de Béziers, situé sur une charmante place accueillante et doté de toutes les commodités nécessaires.
Cet appartement neuf de haut standing se trouve au dernier étage d'un immeuble des 13?/14? siècles classé en site patrimonial.
Ce grand duplex, comprenant 4 chambres, est idéal pour servir d'habitation ou pour un investissement en déficit foncier grâce à ses spécificités et à la possibilité de colocation.

Voici une notice explicative. Nous vous invitons à nous contacter pour un détail approfondi :

Prix d’acquisition : 53 600 €
Frais de notaire : 5 550 €
Travaux déductibles : 225 050 €
Travaux non déductibles : 113 350 €
Total à financer : 397 550 € (frais de notaire inclus)
Gain fiscal DF (TMI 41% + PS 17,2%) : 130 979 €
Prix de revient après défiscalisation : 266 571 €
Loyer colocation : 1 600 €/mois

Soit un prix de revient avant défiscalisation de 4 420 €/m2. Soit un prix de revient après déficit foncier de 2 960 €/m2. Soit une rentabilité locative nette après déficit foncier de 7,2%/an. Passage en meublé possible après 3 ans (mobilier fourni).

Contact : Pastant Lucas Mail : [Coordonnées masquées] Tél : [Coordonnées masquées]
Immatriculation RSAC : 891013849 R.S.A.C Béziers
Les informations sur les risques auxquels ce bien est exposé sont disponibles sur le site Géorisques http://www.georisques.gouv.fr
Voir plus

Référence: 0371
Barème des honoraires

Prêt immobilier

Vous souhaitez connaître votre capacité d’emprunt et trouver le meilleur crédit immobilier ?
Réaliser une simulation gratuite

Appartement à BEZIERS
Appartement à BEZIERS
Appartement à BEZIERS
Appartement à BEZIERS
Ce site est protégé par reCAPTCHA la Politique de confidentialité et les Conditions d’utilisation de Google s’appliquent.
Obtenir un prêt immobilier au meilleur taux ?

En poursuivant votre navigation sans modifier vos paramètres, vous acceptez l'utilisation de cookies susceptibles de réaliser des statistiques de visite. Cliquez ici pour plus d'informations