Bénéficiez des services de nos partenaires locaux soigneusement sélectionnés
pour vous accompagner dans votre parcours d'achat immobilier

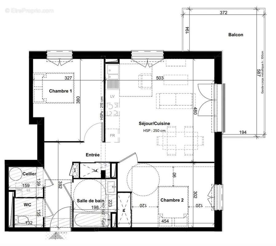
Appartement 65m² à blanquefort

— Blanquefort 33290 —
271 800 €
65 m²
3 pièces
parkingbalcon/terrasseascenseuraccès handicapé

Nos partenaires locaux
UNE LOCALISATION DANS LE BOURG TANT RECHERCHE

Venez découvrir cette résidence à taille humaine de 16 lots nichée dans le centre-ville de Blanquefort et à proximité immédiate de Bordeaux : accessible en 20 minutes par le TRAM. En hyper centre, la résidence prend place harmonieusement dans cet environnement prisé.

Il se compose d'une entrée avec placard donnant sur un volumineux séjour/cuisine avec placard, prolongé par sa terrasse. Ensuite, vous profiterez d'un cellier avec son ballon thermodynamique, d'un WC Indépendant, d'une salle de bain aménagée et équipée, ainsi que de deux chambres avec placard.

Ce bien répond à tous les besoins pour s'épanouir dans un environnement agréable.

Une place de parking en SUS obligatoire sécurisée complète ce bien (20 818€).

UNE LOCALISATION DANS LE BOURG TANT RECHERCHE

Honoraires à la charge du vendeur. Dans une copropriété de 16 lots. Aucune procédure n'est en cours. DPE en cours. Les informations sur les risques auxquels ce bien est exposé sont disponibles sur le site Géorisques : georisques.gouv.fr. Ce bien vous est proposé par un agent commercial (Entreprise individuelle).

Votre conseiller RH Patrimoine : Maxime HERVE
Agent commercial (Entreprise individuelle)
RSAC 133095555 J
RCP 13309666 J
Voir plus

Référence: VA2726-RHPATRI
Bien en copropriété. Nombre de lots : 16.
Honoraires à la charge du vendeur.
Barème des honoraires

Prêt immobilier

Vous souhaitez connaître votre capacité d’emprunt et trouver le meilleur crédit immobilier ?
Réaliser une simulation gratuite

Appartement à BLANQUEFORT
Appartement à BLANQUEFORT
Appartement à BLANQUEFORT
Appartement à BLANQUEFORT
Ce site est protégé par reCAPTCHA la Politique de confidentialité et les Conditions d’utilisation de Google s’appliquent.
Obtenir un prêt immobilier au meilleur taux ?

En poursuivant votre navigation sans modifier vos paramètres, vous acceptez l'utilisation de cookies susceptibles de réaliser des statistiques de visite. Cliquez ici pour plus d'informations