Bénéficiez des services de nos partenaires locaux soigneusement sélectionnés
pour vous accompagner dans votre parcours d'achat immobilier

Lieux uniques ® x propriétés privées propose bel appartement 3ème étage 87.30 m² marcq-en-baroeul (

— Marcq-En-Baroeul 59700 —
470 350 €
87 m²
4 pièces
parkingbalcon/terrasseascenseur

Nos partenaires locaux
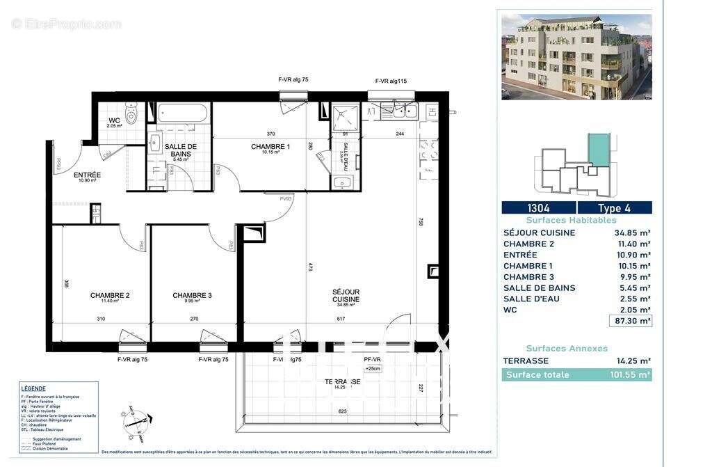
LIEUX UNIQUES ® Lille-Flandres x PROPRIÉTÉS PRIVÉES. Contacter Cédric LARZUL au [Coordonnées masquées] pour cet appartement (de type 4) de 87.30 m², au 3ème étage, avec sa terrasse de 14.é5 m² et situé à Marcq-en-Baroeul, (commune très prisée de la banlieue de Lille), à proximité immédiate de tous les commerces et les services.
Cet appartement comprend au RDC : une entrée (de 10.90 m²), un salon-séjour-cuisine (de 34.85 m²), une chambre 1 (de 10.15 m²), une chambre 2 (de 11.40 m²), une chambre 3 (de 9.95 m²),une salle d'eau (de 2.55 m²), un WC (de 2.05 m²) et une terrasse (de 14.25 m²).
MON AVIS : spacieux et vraiment idéalement situé à Marcq-en-Baroeul (Riche d'un patrimoine remarquable (églises Saint-Vincent, Notre-Dame-des-Victoires, Art-Déco Jules Notelaers ou encore l'ancienne forge), Marcq-en-Baroeul vit aussi au rythme d'une culture vivante avec un cinéma , trois théâtres (Charcot , Colisée Lumière , Rianderie ), une médiathèque , un conservatoire de musique , ... ). Chauffage et eau chaude par chaudière gaz de ville. Les sols des pièces sèches et de la cuisine seront en revêtement stratifié. Les fenêtres et les portes-fenêtres sont en PVC. Volets électriques. Orientation de l'appartement sud-ouest. Ascenseur. Visiophone. 2 parking extérieurs (accès par portail automatique avec télécommande).
MON CONSEIL : un lieu privilégié sur une commune qui jouit d'une certaine réputation. L'appartement est à 1.70 km de la gare TGV de Marcq-en-Baroeul (1H38 pour Paris, 2H20 de Bruxelles, 2H36 de Londres). L'emplacement est stratégique à proximité de toutes les voies d'accès, des gares, aéroport, de Lille et de tous les commerces et les services.
Célèbre pour son vaste hippodrome et pour son très beau golf, Marcq-en-Barœul offre à ses habitants une qualité de vie d’exception aux portes de Lille. Nature, éducation, situation géographique, architecture, les raisons de son succès sont multiples. Avec près d’un tiers de la ville classé en zone naturelle et champêtre, le paysage marcquois se dessine
harmonieux, alternant espaces boisés, belles demeures bourgeoises, quartiers aérés et voie verte du canal de Roubaix. Entre patrimoine et verdure, ce cadre de vie préservé profite d’un excellent dynamisme économique où la vitalité des entreprises et la variété des commerces participent à son attractivité grandissante. Et si les familles se pressent à Marcq-en-Barœul, c’est pour profiter de l’incontestable atout de
la ville : l’excellence de ses établissements scolaires avec un enseignement international très prestigieux de la maternelle au lycée, réputé dans toute la région.
LIEUX UNIQUES ® Lille-Flandres x PROPRIÉTÉS PRIVÉES - [Coordonnées masquées] - plus d’informations sur 3w lieuxuniques com. Le prix de vente est de 470350 euros honoraires d’agence inclus (honoraires d’agence à la charge du vendeur). Immobilier de Luxe LIEUX UNIQUES ® - Immobilier de Prestige LIEUX UNIQUES ® - Immobilier de Charme LIEUX UNIQUES ®. RCS BLOIS : 790 024 848. Lot : 1304.
Voir plus

Référence: 1472

Prêt immobilier

Vous souhaitez connaître votre capacité d’emprunt et trouver le meilleur crédit immobilier ?
Réaliser une simulation gratuite

Appartement à MARCQ-EN-BAROEUL
Appartement à MARCQ-EN-BAROEUL
Appartement à MARCQ-EN-BAROEUL
Appartement à MARCQ-EN-BAROEUL
Appartement à MARCQ-EN-BAROEUL
Ce site est protégé par reCAPTCHA la Politique de confidentialité et les Conditions d’utilisation de Google s’appliquent.
Obtenir un prêt immobilier au meilleur taux ?

En poursuivant votre navigation sans modifier vos paramètres, vous acceptez l'utilisation de cookies susceptibles de réaliser des statistiques de visite. Cliquez ici pour plus d'informations