Bénéficiez des services de nos partenaires locaux soigneusement sélectionnés
pour vous accompagner dans votre parcours d'achat immobilier

Maison 117m² à bruges

— Bruges 33520 —
578 000 €
117 m² / 304 m²
5 pièces
parkingjardinaccès handicapé

Nos partenaires locaux
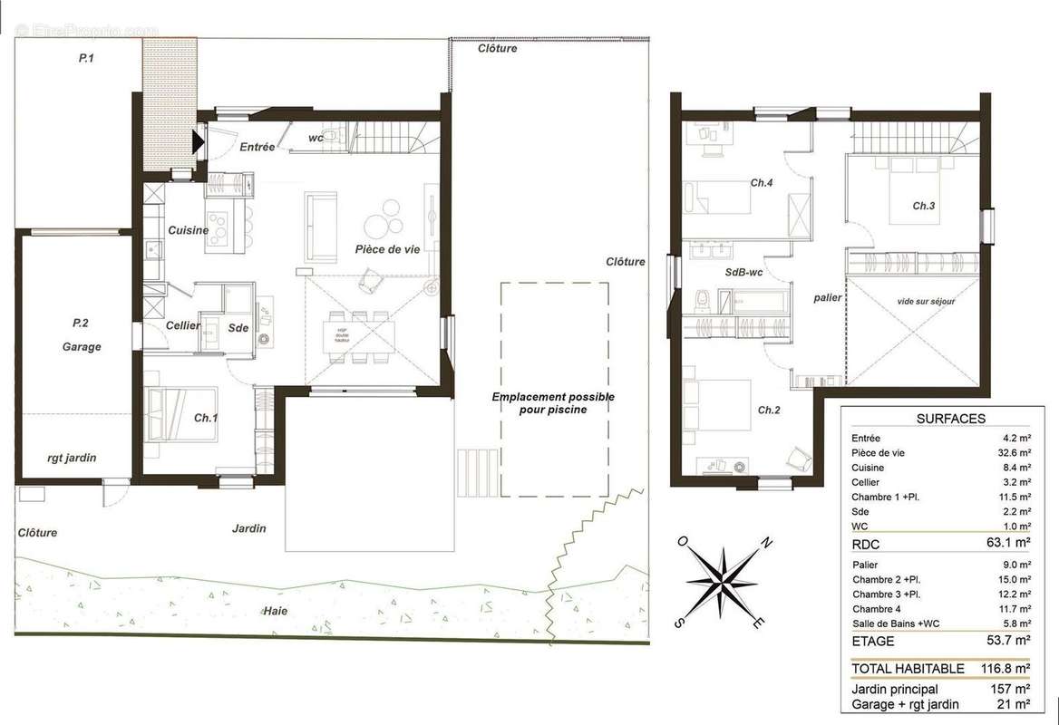
Jolie maison T5, de 117 m² habitables, avec garage et piscine, sur un terrain de 304 m², dans un petit lotissement de 17 lots, à Bruges, à 150 m de l’arrêt du tram D. Elle se compose au rez-de-chaussée d'une entrée avec placard, d'une pièce de vie, pour partie en double hauteur, orientée Sud, ouvrant sur le jardin au travers d’une large baie, d’une chambre avec salle d’eau privative, d’un cellier, d’un wc et d’un garage de 21 m². À l’étage, de deux chambres et d’une salle de bain. Conforme à la norme BBC RT-2012, elle dispose d'un système de chauffage et de production d'eau chaude par pompe à chaleur air-eau. La taxe foncière est de 1850 euros, les charges mensuelles de l’association syndicale sont de 50 euros et les honoraires d'agence sont à la charge du vendeur. Elle sera disponible en juin 2026. Les honoraires d’agence sont à la charge du vendeur. Les risques auxquels ce bien est exposé sont disponibles sur le site Géorisques: www.georisque.gouv.fr
Voir plus

Référence: 32
Honoraires à la charge du vendeur.
Barème des honoraires

Prêt immobilier

Vous souhaitez connaître votre capacité d’emprunt et trouver le meilleur crédit immobilier ?
Réaliser une simulation gratuite

Maison à BRUGES
Maison à BRUGES
Maison à BRUGES
Ce site est protégé par reCAPTCHA la Politique de confidentialité et les Conditions d’utilisation de Google s’appliquent.
Obtenir un prêt immobilier au meilleur taux ?

En poursuivant votre navigation sans modifier vos paramètres, vous acceptez l'utilisation de cookies susceptibles de réaliser des statistiques de visite. Cliquez ici pour plus d'informations