Bénéficiez des services de nos partenaires locaux soigneusement sélectionnés
pour vous accompagner dans votre parcours d'achat immobilier

Lieux uniques ® x propriétés privées propose appartement de 87.06 m² - 3ème étage a honfleur (14600)

— Honfleur 14600 —
255 000 €
65 m²
3 pièces
balcon/terrasseascenseur

Nos partenaires locaux
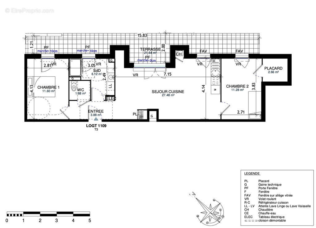
LIEUX UNIQUES ® Normandie x PROPRIÉTÉS PRIVÉES. Contacter Cédric LARZUL au [Coordonnées masquées] pour cet appartement (de troisième étage) de 87.06 m² (avec sa terrasse de 2.68 m²), dans un petit immeuble de standing (qui comporte 28 appartements) et situé à Honfleur, à 2.80 km à pied de la plage du Butin.
Cet appartement comporte : une entrée (de 9.30 m²), un placard (de 2.96 m²), une salle de bains (de 5.88 m²), un salon-séjour-cuisine (de 31.46 m²), un WC (de 2.54 m²), 3 chambres (respectivement de 12.46 m², 11.30 m² et 11.16 m²) et une terrasse (de 2.54 m²).
MON AVIS : L'emplacement est idéal : vous êtes à 950 mètres du port de plaisance, du centre-ville avec ses commerces et ses services de proximité. Chaudière pour l'eau et le chauffage au gaz de ville. Parquet stratifié sur les zones sèches. Toiture de l'immeuble en zinc. Tout à l'égout. Huisseries en PVC et volets roulants. L'appartement est doté d'un parking en sous-sol et d'un ascenseur. L'appartement comporte un interphone avec la possibilité de faire un branchement vidéophonie. Prise RJ45 dans le salon et une chambre. L’immeuble sera équipé d’une antenne collective hertzienne compatible TNT en toiture.
MON CONSEIL : l'emplacement est "topissime" à proximité immédiate de l'hyper-centre, mais également 16 km de Deauville et un accès direct au Havre. Honfleur est réputée pour ses spécialités culinaires qui raviront les papilles des plus gourmands !
LIEUX UNIQUES ® Normandie x PROPRIÉTÉS PRIVÉES - [Coordonnées masquées] - plus d’informations sur 3w lieuxuniques com. Le prix de vente est de 255.000 euros honoraires d’agence inclus (honoraires d’agence à la charge du vendeur). Immobilier de Luxe LIEUX UNIQUES ® - Immobilier de Prestige LIEUX UNIQUES ® - Immobilier de Charme LIEUX UNIQUES ®. RCS BLOIS : 790 024 848. Lot : 1109.
Voir plus

Référence: 1475

Prêt immobilier

Vous souhaitez connaître votre capacité d’emprunt et trouver le meilleur crédit immobilier ?
Réaliser une simulation gratuite

Appartement à HONFLEUR
Appartement à HONFLEUR
Appartement à HONFLEUR
Appartement à HONFLEUR
Ce site est protégé par reCAPTCHA la Politique de confidentialité et les Conditions d’utilisation de Google s’appliquent.
Obtenir un prêt immobilier au meilleur taux ?

En poursuivant votre navigation sans modifier vos paramètres, vous acceptez l'utilisation de cookies susceptibles de réaliser des statistiques de visite. Cliquez ici pour plus d'informations