Maison les sables d olonne 5 pièces 119,70 m²

— Les Sables-D'olonne 85340 —
535 500 €
120 m² / 400 m²
5 pièces
parkingjardin

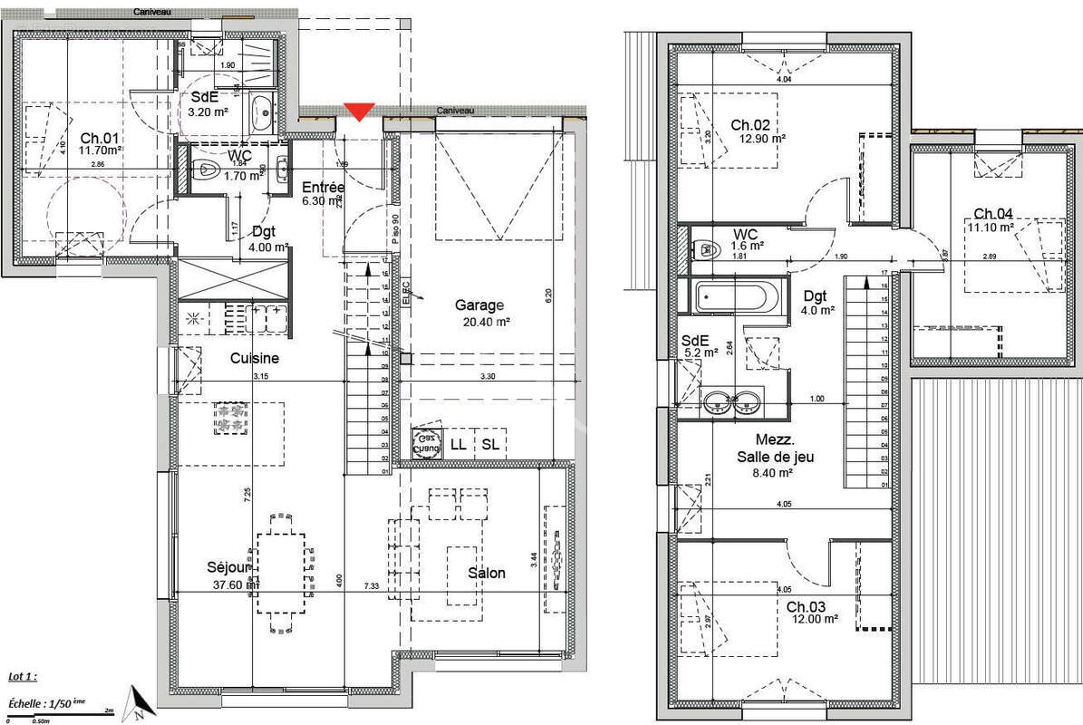
L'adresse Immobilier, vous présente cette maison neuve d'environ 120m², livraison prévu décembre 2024. Elle est située proche Leclerc, elle est composée au rez-de-chaussée d'une grande pièce de vie, cuisine, wc et suite parentale. A l'étage, on retrouve 3 chambres, wc, salle d'eau et bureau ouvert. Garage et jardin. RT 2020, 4 chambres et bureau. A découvrir. DPE: A (5.00 % honoraires TTC à la charge de l'acquéreur.)

Référence: 8397
Honoraires d'agence de 5% à la charge de l'acquéreur
Barème des honoraires

Prêt immobilier

Vous souhaitez connaître votre capacité d’emprunt et trouver le meilleur crédit immobilier ?
Réaliser une simulation gratuite

Maison à LES SABLES-D'OLONNE
Maison à LES SABLES-D'OLONNE
Maison à LES SABLES-D'OLONNE
Ce site est protégé par reCAPTCHA la Politique de confidentialité et les Conditions d’utilisation de Google s’appliquent.
Obtenir un prêt immobilier au meilleur taux ?

En poursuivant votre navigation sans modifier vos paramètres, vous acceptez l'utilisation de cookies susceptibles de réaliser des statistiques de visite. Cliquez ici pour plus d'informations