Bénéficiez des services de nos partenaires locaux soigneusement sélectionnés
pour vous accompagner dans votre parcours d'achat immobilier

T2 neuf - 40 m² au sein dune bastide entièrement réhabilitée

— Marseille-13e 13013 —
157 000 €
40 m²
2 pièces

Nos partenaires locaux
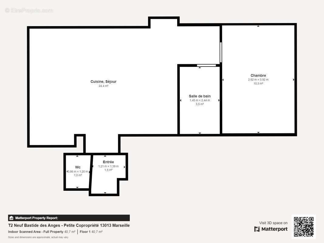
13013 Marseille , à deux pas des axes routiers , du métro Malpassé , venez découvrir cet appartement de type 2 totalisant 40 m² de superficie entièrement rénovée au premier étage d'une bastide historique en pierre et rénovée dans sa totalité .

La Bastides des Anges se situe dans le quartier résidentiel du quartier , entourée de villas. . Elle ne comporte que 5 appartements : un T4/5 en Rez de chaussée , un T2 et un T3 aux premier et deuxième (et dernier) étages . C'est donc au sein d'une toute petite copropriété que vous allez pouvoir vous installer dans un bien entièrement réhabilité avec des matériaux nobles et modernes , alliant ainsi le charme de l'ancien et du contemporain .

La Bastide des Anges était l'un des premiers édifices de cette parcelle Marseillaise ( voir photo vue du ciel prise en 1923 ) . Elle fut la propriété pendant des dizaines d'années de la famille PAULIDES qui était fabriquant , importateur et exportateur de Verreries , Faïences et Porcelaines . Ce lieu a déjà sa propre histoire et ne demande qu' à accueillir de nouveaux occupants privilégier.

L'appartement est accessible par un escalier central et se trouve au premier étage . Sur le palier ne se trouvent que deux logements , dont celui ci .

Il est composé d'une entrée desservant un séjour cuisine doté une belle hauteur sous plafonds et équipé d'une climatisation réversible .
La chambre est spacieuse , climatisée et très lumineuse .
La salle d'eau est moderne et présente de généreux volumes qui qui mettent favorablement en avant ses prestations modernes. Le Wc est indépendant et se trouve à l'entrée du bien .

Il est très aisé de stationner dans la rue .

Le charme de l'ancien rénové se complète d'un lieu au calme absolu.
La façade est rénovée , les menuiseries sont neuves et modernes , les volets en aluminium afin de ne pas avoir d'entretien .

Côté diagnostiques , que demander de plus ? Pas d'anomalies électriques (et oui c'est neuf ), pas de termites , pas de plomb , le DPE est en B , le top ...

La taxe foncière ne dépassera pas 400 euros . Pas de charges à prévoir si ce n'est la quotte part de l'assurance copropriété ainsi que des frais liés au ménages des parties communes .

Nous avons les clés en agence afin d'organiser votre visite dans les meilleurs délais .

La visite immersive de ce bien est disponible en cliquant sur le lien joint à cette annonce et en nous contactant via le formulaire de contact du site ou par téléphone afin que nous puissions vous en communiquer le code. Merci
Les informations sur les risques auxquels ce bien est exposé sont disponibles sur le site Géorisques : www.georisques.gouv.fr
Référence agence : 4341
Voir plus

Référence: N12S-PMI-H7J
Bien en copropriété. Nombre de lots : 10. Charges de copropriété : 8 €.
Honoraires à la charge du vendeur.
Barème des honoraires
DPE
A
B
C
D
E
F
G
GES
A
B
C
D
E
F
G

Prêt immobilier

Vous souhaitez connaître votre capacité d’emprunt et trouver le meilleur crédit immobilier ?
Réaliser une simulation gratuite

Appartement à MARSEILLE-13E
Appartement à MARSEILLE-13E
Appartement à MARSEILLE-13E
Appartement à MARSEILLE-13E
Appartement à MARSEILLE-13E
Appartement à MARSEILLE-13E
Appartement à MARSEILLE-13E
Appartement à MARSEILLE-13E
Appartement à MARSEILLE-13E
Appartement à MARSEILLE-13E
Appartement à MARSEILLE-13E
Appartement à MARSEILLE-13E
Appartement à MARSEILLE-13E
Appartement à MARSEILLE-13E
Ce site est protégé par reCAPTCHA la Politique de confidentialité et les Conditions d’utilisation de Google s’appliquent.
Obtenir un prêt immobilier au meilleur taux ?

En poursuivant votre navigation sans modifier vos paramètres, vous acceptez l'utilisation de cookies susceptibles de réaliser des statistiques de visite. Cliquez ici pour plus d'informations