Bénéficiez des services de nos partenaires locaux soigneusement sélectionnés
pour vous accompagner dans votre parcours d'achat immobilier

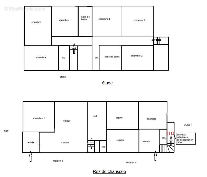
Maison merlevenez 14 pièce(s) 220 m2

— Merlevenez 56700 —
371 070 €
220 m² / 850 m²
14 pièces

Nos partenaires locaux
Idéal investisseur ou Maison familiale
Potentiel Énorme pour cette propriété divisée en 2 logements exposés Sud et comprenant chacun ; au rdc entrée, wc, cuisine, salon-séjour et à l'étage, 3 chambres , wc et salle de bain, et caves respectives. Le tout sur un terrain d'environ 850m². Rénovations à prévoir. Au calme et commerces à pied, à Merlevenez. (6.02 % honoraires TTC à la charge de l'acquéreur.)
Les informations sur les risques auxquels ce bien est exposé sont disponibles sur le site Géorisques : www. georisques. gouv. fr
Voir plus

Référence: 7777
Honoraires d'agence de 6.02% à la charge de l'acquéreur
DPE
A
B
C
D
E
F
G
GES
A
B
C
D
E
F
G

Prêt immobilier

Vous souhaitez connaître votre capacité d’emprunt et trouver le meilleur crédit immobilier ?
Réaliser une simulation gratuite

Maison à MERLEVENEZ
Maison à MERLEVENEZ
Ce site est protégé par reCAPTCHA la Politique de confidentialité et les Conditions d’utilisation de Google s’appliquent.
Obtenir un prêt immobilier au meilleur taux ?

En poursuivant votre navigation sans modifier vos paramètres, vous acceptez l'utilisation de cookies susceptibles de réaliser des statistiques de visite. Cliquez ici pour plus d'informations