Bénéficiez des services de nos partenaires locaux soigneusement sélectionnés
pour vous accompagner dans votre parcours d'achat immobilier

Maison ancienne avec nombreuses dépendances proche voulx

— Chevry-En-Sereine 77710 —
148 000 €
57 m² / 1 929 m²
2 pièces
parkingjardin

Nos partenaires locaux
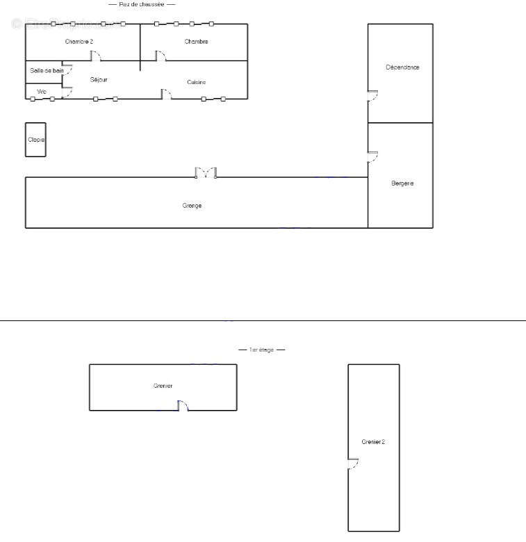
Ensemble immobilier composé d'une maison ancienne entourée de nombreuses dépendances donnant de multiples possibilités sur 450m2. Possibilité d'agrandir ce terrain avec un jardin supplémentaire de 1.479m2. Une cour close bétonnée permet l'accès aux différentes granges, auvent, écurie, cellier, four à pain. Les greniers sont présents sur l'ensemble des bâtiments. La maison principale est aménagée de plain pied avec cuisine, séjour, salle de bains, 1 chambre. À l'étage : Grenier laissant des possibilités d'aménagement supplémentaire. Son aménagement actuel est modeste et spartiate mais l'ensemble a été entretenu. Il vous reste à l'aménager confortablement et à le valoriser selon vos besoins pour profiter pleinement de ses volumes et de ses nombreuses dépendances. L'agence Pinoy immobilier 33 Grande rue 77940 VOULX, - [Coordonnées masquées]5 vous accompagne à chaque étape de votre projet immobilier.
Voir plus

Référence: PV3901
Honoraires à la charge du vendeur.
Barème des honoraires
DPE
A
B
C
D
E
F
G
GES
A
B
C
D
E
F
G

Prêt immobilier

Vous souhaitez connaître votre capacité d’emprunt et trouver le meilleur crédit immobilier ?
Réaliser une simulation gratuite

Maison à CHEVRY-EN-SEREINE
Maison à CHEVRY-EN-SEREINE
Maison à CHEVRY-EN-SEREINE
Maison à CHEVRY-EN-SEREINE
Maison à CHEVRY-EN-SEREINE
Maison à CHEVRY-EN-SEREINE
Maison à CHEVRY-EN-SEREINE
Maison à CHEVRY-EN-SEREINE
Maison à CHEVRY-EN-SEREINE
Maison à CHEVRY-EN-SEREINE
Maison à CHEVRY-EN-SEREINE
Maison à CHEVRY-EN-SEREINE
Maison à CHEVRY-EN-SEREINE
Maison à CHEVRY-EN-SEREINE
Maison à CHEVRY-EN-SEREINE
Ce site est protégé par reCAPTCHA la Politique de confidentialité et les Conditions d’utilisation de Google s’appliquent.
Obtenir un prêt immobilier au meilleur taux ?

En poursuivant votre navigation sans modifier vos paramètres, vous acceptez l'utilisation de cookies susceptibles de réaliser des statistiques de visite. Cliquez ici pour plus d'informations