Bénéficiez des services de nos partenaires locaux soigneusement sélectionnés
pour vous accompagner dans votre parcours d'achat immobilier

Appartement 69m² à courbevoie

— Courbevoie 92400 —
470 000 €
69 m²
3 pièces
parkingbalcon/terrasseascenseur

Nos partenaires locaux
Grand trois pièces - Courbevoie / La Défense
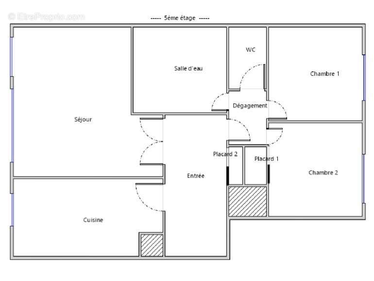
Au sein d'une belle résidence, au 5ème étage, appartement vendu occupé de 69m2.
L'appartement comprend une entrée avec rangement, un grand séjour avec balcon, une cuisine séparée, deux chambres avec placards ainsi qu'une salle de douche et des wc.
L'appartement se complète d'une place de parking et d'une cave.

L'appartement est loué 1653€/mois (dont 130€ de charges). Le bail a été signé le 1er septembre 2020.
Le locataire est un excellent payeur.



Honoraires inclus de 3.98% TTC à la charge de l'acquéreur. Prix hors honoraires 452 000 €. Dans une copropriété de 150 lots. Quote-part moyenne du budget prévisionnel 2 700 €/an. Aucune procédure n'est en cours. Classe énergie D, Classe climat D Montant estimé des dépenses annuelles d'énergie pour un usage standard : entre 700.00 € et 1000.00 € sur les années 2021, 2022 et 2023 (abonnements compris). Les informations sur les risques auxquels ce bien est exposé sont disponibles sur le site Géorisques : georisques.gouv.fr.
Voir plus

Référence: VA2140-BISDORFF
Bien en copropriété. Nombre de lots : 150. Charges de copropriété : 2700 €.
Honoraires d'agence de 3.98% à la charge de l'acquéreur
Barème des honoraires
DPE
A
B
C
D
E
F
G
GES
A
B
C
D
E
F
G

Prêt immobilier

Vous souhaitez connaître votre capacité d’emprunt et trouver le meilleur crédit immobilier ?
Réaliser une simulation gratuite

Appartement à COURBEVOIE
Appartement à COURBEVOIE
Appartement à COURBEVOIE
Appartement à COURBEVOIE
Ce site est protégé par reCAPTCHA la Politique de confidentialité et les Conditions d’utilisation de Google s’appliquent.
Obtenir un prêt immobilier au meilleur taux ?

En poursuivant votre navigation sans modifier vos paramètres, vous acceptez l'utilisation de cookies susceptibles de réaliser des statistiques de visite. Cliquez ici pour plus d'informations