Lot 1 - maison mitoyenne de 90 m²

— Annecy 74940 —
492 000 €
90 m² / 400 m²
4 pièces
parkingjardin

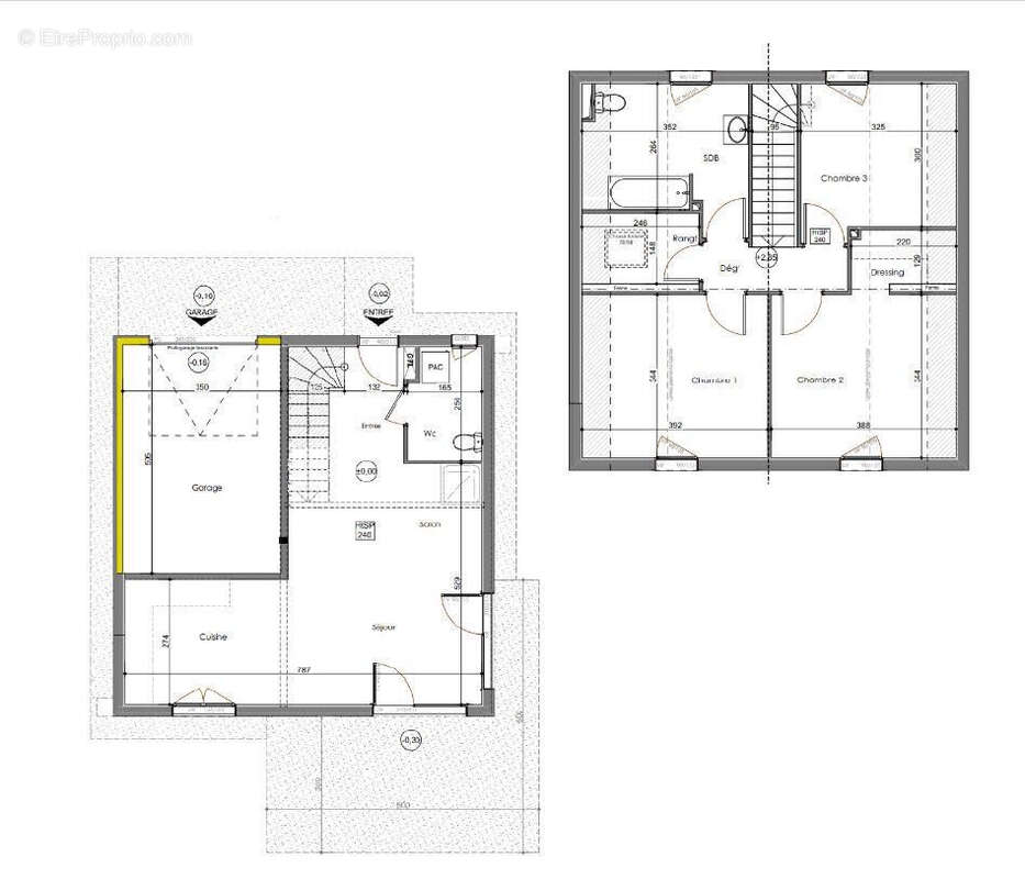
Projet de construction d'une maison mitoyenne d'environ 90m² habitables au sein d'un lotissement de 5 lots , situé à 3 minutes du pont de Brogny. Le plain-pied est consacré à la pièce de vie avec accès terrasse et l'étage est dédié au coin nuit avec 3 chambres et salle de bains. Parcelle de 400 m² et garage. Thierry DUCRET (EI) Agent Commercial - Numéro RSAC : 333 042 604 - .

Référence: 1539
Honoraires à la charge du vendeur.
Barème des honoraires

Prêt immobilier

Vous souhaitez connaître votre capacité d’emprunt et trouver le meilleur crédit immobilier ?
Réaliser une simulation gratuite

Maison à ANNECY
Maison à ANNECY
Maison à ANNECY
Maison à ANNECY
Maison à ANNECY
Ce site est protégé par reCAPTCHA la Politique de confidentialité et les Conditions d’utilisation de Google s’appliquent.
Obtenir un prêt immobilier au meilleur taux ?

En poursuivant votre navigation sans modifier vos paramètres, vous acceptez l'utilisation de cookies susceptibles de réaliser des statistiques de visite. Cliquez ici pour plus d'informations