Appartement 2 pièce(s) 42.60 m2

— Saint-Leu-La-Foret 95320 —
286 000 €
43 m²
2 pièces

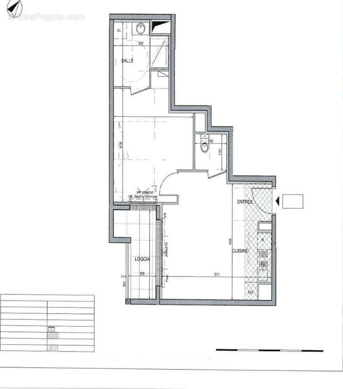
Opportunité à saisir, remis à la vente d' un Appartement F2 de 42.60M², dans un programme neuf en plein centre ville de St Leu la Forêt. Dans résidence de grand standing, la livraison est prévue 4ème Trimestre 2025. Proche des commerces, des écoles et de la gare Celui-ci comprend : une entrée, un séjour avec cuisine ouverte, une grande chambre, une salle d'eau, un WC, une loggia et un parking en sous sol. Vue dégagée sur parc.

Référence: 24078
Honoraires à la charge du vendeur.
Barème des honoraires

Prêt immobilier

Vous souhaitez connaître votre capacité d’emprunt et trouver le meilleur crédit immobilier ?
Réaliser une simulation gratuite

Appartement à SAINT-LEU-LA-FORET
Appartement à SAINT-LEU-LA-FORET
Appartement à SAINT-LEU-LA-FORET
Appartement à SAINT-LEU-LA-FORET
Appartement à SAINT-LEU-LA-FORET
Ce site est protégé par reCAPTCHA la Politique de confidentialité et les Conditions d’utilisation de Google s’appliquent.
Obtenir un prêt immobilier au meilleur taux ?

En poursuivant votre navigation sans modifier vos paramètres, vous acceptez l'utilisation de cookies susceptibles de réaliser des statistiques de visite. Cliquez ici pour plus d'informations