Bénéficiez des services de nos partenaires locaux soigneusement sélectionnés
pour vous accompagner dans votre parcours d'achat immobilier

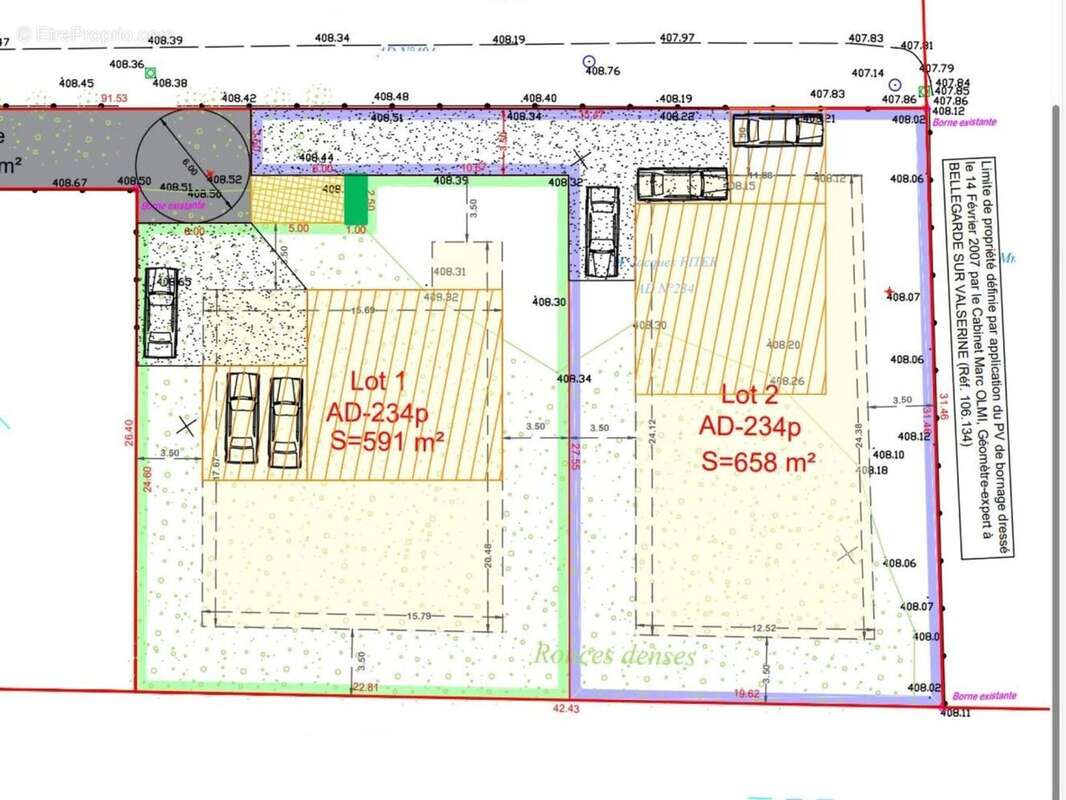
Terrain constructible libre constructeur

— Pougny 01550 —
265 000 €
658 m²
jardin

Nos partenaires locaux
A Pougny haut, proche école, beau terrain plat de 658 m² viabilisé, situé dans un petit lotissement de 2 lots. Libre constructeur . Possibilité surface plancher de 180 m². Dossier complet sur demande. lot 2 sur le plan

Prêt immobilier

Vous souhaitez connaître votre capacité d’emprunt et trouver le meilleur crédit immobilier ?
Réaliser une simulation gratuite

Terrain à POUGNY
Terrain à POUGNY
Terrain à POUGNY
Ce site est protégé par reCAPTCHA la Politique de confidentialité et les Conditions d’utilisation de Google s’appliquent.
Obtenir un prêt immobilier au meilleur taux ?

En poursuivant votre navigation sans modifier vos paramètres, vous acceptez l'utilisation de cookies susceptibles de réaliser des statistiques de visite. Cliquez ici pour plus d'informations