Bénéficiez des services de nos partenaires locaux soigneusement sélectionnés
pour vous accompagner dans votre parcours d'achat immobilier

Maison de ville 4 pièces - centre La Ferrière sur Risle

— La Ferriere-Sur-Risle 27760 —
106 000 €
80 m² / 3 m²
4 pièces
jardin

Nos partenaires locaux
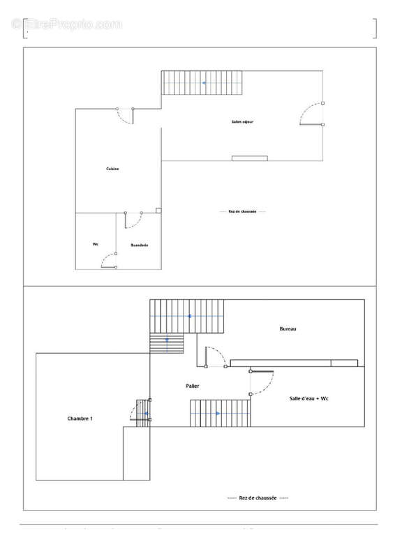
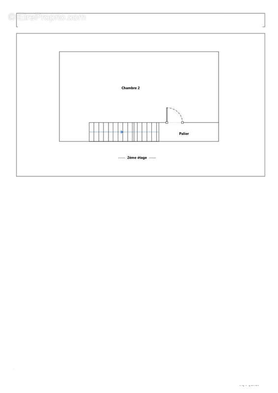
Réf 4715. Dans le charmant village de la Ferrière sur Risle, maison de ville en briques sur trois niveaux, avec courette. Elle est composée au rdc d'une pièce de vie avec insert, une cuisine ouverte équipée donnant sur une courette, une arrière cuisine-buanderie et WC séparé. Au 1er étage, un palier distribue une chambre, un bureau pouvant être aménagé en chambre et une salle d'eau avec WC. Et au 2e étage une grande chambre. Chauffage électrique. Double vitrage. Exposition Sud. Commerces, école et marché le dimanche à pied. Gare de Conches à 14 km.
Voir plus

Référence: 4715
Honoraires à la charge du vendeur.
Barème des honoraires
DPE
A
B
C
D
E
F
G
GES
A
B
C
D
E
F
G
Maison à LA FERRIERE-SUR-RISLE
Maison à LA FERRIERE-SUR-RISLE
Maison à LA FERRIERE-SUR-RISLE
Maison à LA FERRIERE-SUR-RISLE
Maison à LA FERRIERE-SUR-RISLE
Maison à LA FERRIERE-SUR-RISLE
Maison à LA FERRIERE-SUR-RISLE
Maison à LA FERRIERE-SUR-RISLE
Maison à LA FERRIERE-SUR-RISLE
Maison à LA FERRIERE-SUR-RISLE
Maison à LA FERRIERE-SUR-RISLE
Maison à LA FERRIERE-SUR-RISLE
Géorisques

Les informations sur les risques auxquels ce bien est exposé sont disponibles sur le site Géorisques : www.georisques.gouv.fr

Ce site est protégé par hCaptcha Politique de confidentialité et Conditions d’utilisation s’appliquent.

En poursuivant votre navigation sans modifier vos paramètres, vous acceptez l'utilisation de cookies susceptibles de réaliser des statistiques de visite. Cliquez ici pour plus d'informations