Bénéficiez des services de nos partenaires locaux soigneusement sélectionnés
pour vous accompagner dans votre parcours d'achat immobilier

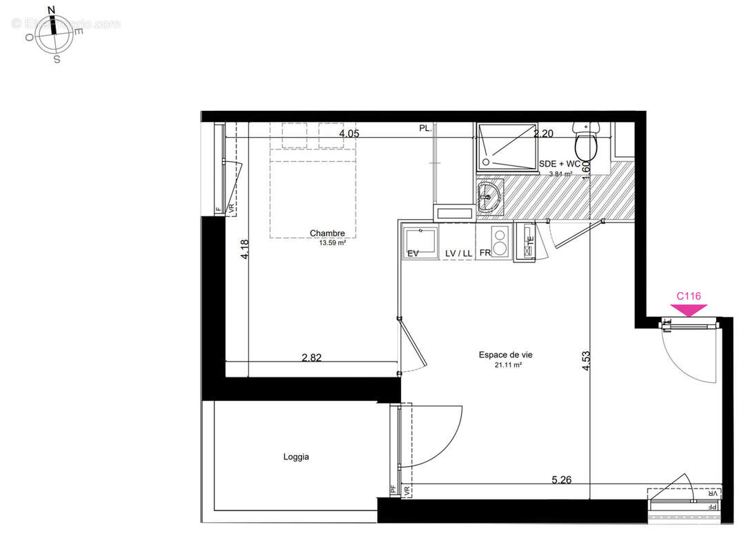
A vendre appartement type 2 - vente lmnp

— Niort 79000 —
178 280 €
39 m²
2 pièces
balcon/terrasse

Nos partenaires locaux
 A VENDRE APPARTEMENT TYPE 2 - INVESTISSEMENT LOCATIF EN LMNP
 - La résidence Venezia profite d’un emplacement stratégique (à 7 min à pied de l’arrêt de bus « Hôpital ») facilitant l’accès aux nombreux pôles universitaires.
Venezia bénéficie de tout le confort nécessaire au quotidien avec de nombreux commerces de proximité (Carrefour Market, pharmacie, tabac, boulangerie, à 10 min à pied)
A seulement 6 minutes en vélo du centre-ville de Niort, la résidence bénéficie d’un emplacement central permettant aux étudiants d’accéder à toutes les commodités rapidement :
• Lignes de bus à proximité :
Ligne 1 : arrêt « Hôpital » à 600 m reliant à la résidence à Niort Pôle Universitaire
Ligne 7 : arrêt « Hôpital » à 600 m reliant à plusieurs points d’intérêts du centre-ville de Niort
• Gare de Niort à 1 km de la résidence, desservie par les TGV (direction Paris en 2h) et TER (Direction La Rochelle et Poitiers)
La Résidence est une copropriété de 221 logements collectifs (T1 et T2) répartis sur 4 bâtiments en R+2+ attiques et 100 places de parking semi-couvertes en RDC des 4 bâtiments.
 
VENTE LMNP - Résidence clôturée et sécurisée, vastes espaces verts arborés, terrasse en potagers partagés en roof-top.
La résidence propose des espaces communs en rez-de-chaussée du bâtiment B :
· Salle commune + cuisine équipée
· Espace coworking
· Salle de fitness
· Laverie
· Espace vélos
· Bureau d’accueil
· Salle de cinéma
· Logements meublés et optimisés grâce à de nombreux rangements
LIVRAISON :
3ème Trimestre 2025
Voir plus

Bien en copropriété. Nombre de lots : 221.
Honoraires à la charge du vendeur.
Barème des honoraires

Prêt immobilier

Vous souhaitez connaître votre capacité d’emprunt et trouver le meilleur crédit immobilier ?
Réaliser une simulation gratuite

Appartement à NIORT
Appartement à NIORT
Appartement à NIORT
Appartement à NIORT
Appartement à NIORT
Appartement à NIORT
Appartement à NIORT
Ce site est protégé par reCAPTCHA la Politique de confidentialité et les Conditions d’utilisation de Google s’appliquent.
Obtenir un prêt immobilier au meilleur taux ?

En poursuivant votre navigation sans modifier vos paramètres, vous acceptez l'utilisation de cookies susceptibles de réaliser des statistiques de visite. Cliquez ici pour plus d'informations