Appartement neuf t5 d'exception - vue mer à brest

— Le Relecq-Kerhuon 29480 —
1 370 000 €
149 m²
7 pièces
parkingbalcon/terrasseascenseur

Un programme immobilier rare dans un cadre unique face à la mer. Située au Relecq-Kerhuon, à moins de 10 minutes du centre de Brest. La résidence Rosalie s’élève majestueusement face à la rade, offrant un style bord de mer inspiré des cabanes de plage colorées et des volumes élégamment posés sur pilotis. Un lieu unique..

Chaque détail architectural a été pensé pour sublimer la vue panoramique sur la mer, avec un jeu d’orientations qui crée un dynamisme visuel, tout en s’intégrant harmonieusement dans l’environnement.

Le rez-de-chaussée, surélevé pour atténuer les bruits urbains, offre aux résidents des jardins privatifs. Des coursives discrètes et protégées par des écrans en bois desservent les entrées des appartements. De plus, la résidence est équipée de deux parkings (aérien et souterrain) pour le confort de ses occupants.

Rosalie incarne la convivialité urbaine grâce à une placette centrale, entourée de commerces, d’un restaurant et d’une maison médicale, propice aux échanges et à la détente en plein air. La résidence propose actuellement des appartements du T2 au T6, pensés pour un style de vie moderne et confortable.


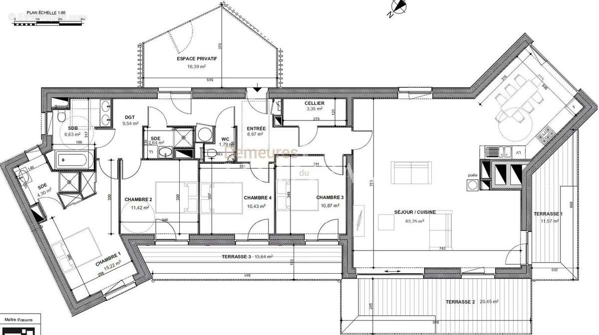
Description de l'appartement T5 :

Situé au 4e étage de la résidence, cet appartement T5 de standing est accessible par ascenseur et bénéficie d’une vue directe sur la mer depuis trois vastes balcons-terrasses. D'une superficie généreuse, il se compose comme suit :

- Entrée fonctionnelle avec cellier.

- 4 chambres spacieuses, dont une suite parentale avec salle d’eau privative et placards intégrés.

- Salon-séjour lumineux, ouvert sur la mer, prolongé par une cuisine (non fournie) et donnant sur les terrasses.

- Salle de bain moderne, équipée de meuble vasque, miroir, applique lumineuse, toilettes et sèche-serviettes.

- Salle de douche avec vasque.

- Un toilette séparé en plus de celui de la salle de bain pour plus de confort

Les prestations intérieures ont été pensées pour allier esthétisme et confort :

- Parquet dans l’entrée, le séjour et les chambres

- Carrelage en grès cérame dans la cuisine, la salle d’eau et la salle de bain

- Porte d’entrée sécurisée avec serrure 3 points

- Visiophone pour un accès sécurisé

- Fenêtres et portes-fenêtres en aluminium laqué, avec volets roulants électriques

- Habitat connecté permettant le pilotage du chauffage et des volets roulants à distance

- Chauffage par panneaux rayonnants électriques, avec thermostat programmable, et poêle à granulés pour plus de confort

- Isolation thermique et acoustique de haute performance, conforme à la réglementation énergétique RT 2012

Chaque appartement de la résidence offre une vue mer exceptionnelle, et tout l’intérieur est personnalisable. Le promoteur vous permet de modifier les plans ainsi que les matériaux pour un appartement à votre image.

Deux places de parking souterrain sont incluses avec cet appartement T5.

Livraison prévue en 2026 – Possibilité de réunir plusieurs appartements contigus pour créer un espace encore plus vaste.

PRIX IDENTIQUE A CELUI PROPOSE PAR LE PROMOTEUR.

Vous pouvez me contacter au [Coordonnées masquées] ou par email : [Coordonnées masquées]

A très bientôt,

Arthur
Demeures du littoral
Voir plus

Référence: FIN268A

Prêt immobilier

Vous souhaitez connaître votre capacité d’emprunt et trouver le meilleur crédit immobilier ?
Réaliser une simulation gratuite

Appartement à LE RELECQ-KERHUON
Appartement à LE RELECQ-KERHUON
Appartement à LE RELECQ-KERHUON
Appartement à LE RELECQ-KERHUON
Appartement à LE RELECQ-KERHUON
Appartement à LE RELECQ-KERHUON
Appartement à LE RELECQ-KERHUON
Appartement à LE RELECQ-KERHUON
Appartement à LE RELECQ-KERHUON
Appartement à LE RELECQ-KERHUON
Appartement à LE RELECQ-KERHUON
Ce site est protégé par reCAPTCHA la Politique de confidentialité et les Conditions d’utilisation de Google s’appliquent.
Obtenir un prêt immobilier au meilleur taux ?

En poursuivant votre navigation sans modifier vos paramètres, vous acceptez l'utilisation de cookies susceptibles de réaliser des statistiques de visite. Cliquez ici pour plus d'informations