Bénéficiez des services de nos partenaires locaux soigneusement sélectionnés
pour vous accompagner dans votre parcours d'achat immobilier

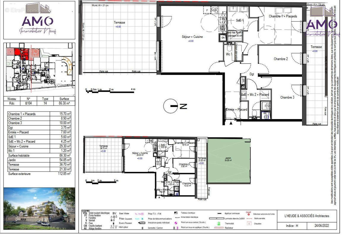
Appartement 86m² à orleans

— Orleans 45000 —
389 000 €
87 m²
4 pièces
parkingbalcon/terrasse

Nos partenaires locaux
À VENDRE :

Logement neuf dans une résidence moderne construite en 2024, comprenant deux parkings privatifs.

Ce bien immobilier se compose d'une spacieuse pièce de vie, d'une cuisine à aménager selon vos goûts, de trois chambres confortables, de deux salles d'eau (dont une avec WC) et d'un toilette indépendant. Vous pourrez également profiter d'un jardin ainsi que de deux belles terrasses, idéales pour vos moments de détente.

Idéalement situé à proximité de la Loire, ce logement vous permet d'apprécier de paisibles balades le long des berges, offrant un cadre de vie agréable et ressourçant.

Bien que neuf, ce logement est déjà construit et livré, offrant ainsi une possibilité d'emménagement immédiat.

En tant qu'acquéreur, vous bénéficierez des nombreux avantages liés à l'achat d'un logement neuf, notamment des frais de notaire réduits et des garanties de construction pouvant aller jusqu'à 10 ans après l'achèvement de la résidence.

La connexion avec les transports en commun est également optimale, avec un arrêt de bus au pied de l'immeuble et le tramway accessible en seulement 5 minutes.

N'hésitez pas à nous contacter pour plus d'informations !

Ce bien est à visiter sans tarder !

Honoraires à la charge du vendeur. Dans une copropriété de 59 lots. Aucune procédure n'est en cours. Classe énergie C, Classe climat C Montant moyen estimé des dépenses annuelles d'énergie pour un usage standard, établi à partir des prix de l'énergie de l'année 2021 : entre 671.00 et 908.00 €. Les informations sur les risques auxquels ce bien est exposé sont disponibles sur le site Géorisques : georisques.gouv.fr.
Voir plus

Référence: À VENDRE : APPARTEMENT NEUF T4
Bien en copropriété. Nombre de lots : 59.
Honoraires à la charge du vendeur.
Barème des honoraires
DPE
A
B
C
D
E
F
G
GES
A
B
C
D
E
F
G

Prêt immobilier

Vous souhaitez connaître votre capacité d’emprunt et trouver le meilleur crédit immobilier ?
Réaliser une simulation gratuite

Appartement à ORLEANS
Appartement à ORLEANS
Appartement à ORLEANS
Appartement à ORLEANS
Ce site est protégé par reCAPTCHA la Politique de confidentialité et les Conditions d’utilisation de Google s’appliquent.
Obtenir un prêt immobilier au meilleur taux ?

En poursuivant votre navigation sans modifier vos paramètres, vous acceptez l'utilisation de cookies susceptibles de réaliser des statistiques de visite. Cliquez ici pour plus d'informations