Bénéficiez des services de nos partenaires locaux soigneusement sélectionnés
pour vous accompagner dans votre parcours d'achat immobilier

Votre future maison à saint jean de monts

— Saint-Jean-De-Monts 85160 —
196 800 €
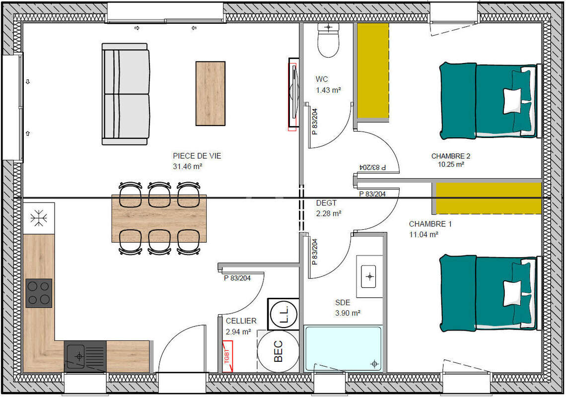
63 m² / 450 m²
3 pièces
jardin

Nos partenaires locaux
SAINT JEAN DE MONTS - Vous avez un projet de construction ? Quartier d'Orouët, dans un petit lotissement de 5 parcelles. Nous vous proposons cette maison neuve, de Type 3 d'environ 63 m². Composée d'une pièce de vie, un cellier, deux chambres, une salle d'eau, un wc, sur un terrain de 450 m². Sous réserve de l'étude de sol. Plans disponibles sur demande. Réf.8950-T3 Pour toute information complémentaire ou visite, contactez-nous au [Coordonnées masquées] ou par mail [Coordonnées masquées]
Voir plus

Barème des honoraires

Prêt immobilier

Vous souhaitez connaître votre capacité d’emprunt et trouver le meilleur crédit immobilier ?
Réaliser une simulation gratuite

Maison à SAINT-JEAN-DE-MONTS
Maison à SAINT-JEAN-DE-MONTS
Maison à SAINT-JEAN-DE-MONTS
Ce site est protégé par reCAPTCHA la Politique de confidentialité et les Conditions d’utilisation de Google s’appliquent.
Obtenir un prêt immobilier au meilleur taux ?

En poursuivant votre navigation sans modifier vos paramètres, vous acceptez l'utilisation de cookies susceptibles de réaliser des statistiques de visite. Cliquez ici pour plus d'informations