Bénéficiez des services de nos partenaires locaux soigneusement sélectionnés
pour vous accompagner dans votre parcours d'achat immobilier

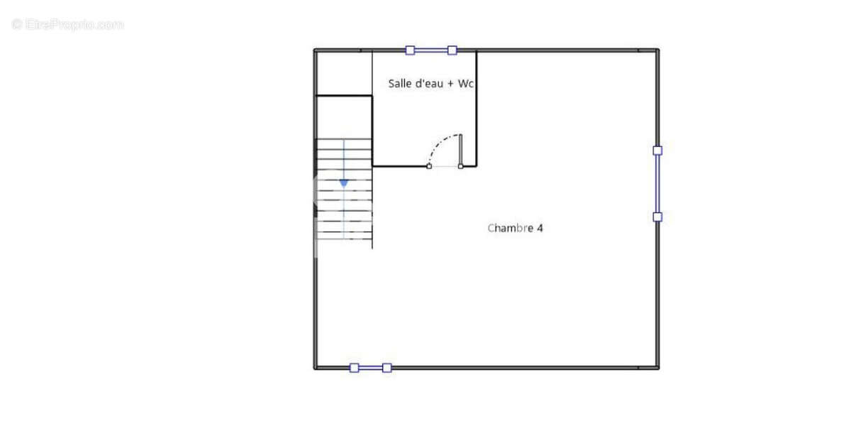
Maison de 150 m² à vendre à meyzieu - 4 chambres et jardin

— Meyzieu 69330 —
499 000 €
149 m² / 700 m²
5 pièces
parkingjardin

Nos partenaires locaux
Vous cherchez une maison spacieuse et confortable ? Ne cherchez plus ! Cette belle maison de 150m² Habitables (170 m² utiles) , située à Meyzieu dans le quartier de la Jacquière, est faite pour vous. Avec ses 5 pièces, dont 4 chambres, elle est idéale pour une famille. Profitez d'une cuisine américaine aménagée et équipée, d'un grand salon lumineux, et de 3 chambres au rez-de-chaussée. A l'extérieur, vous aurez un joli terrain de 700 m², parfait pour les barbecues d'été ou pour laisser jouer les enfants. La maison est en bon état, avec des fenêtres en PVC double vitrage et des volets roulants électriques. Côté pratique, un garage fermé de 22 m² et une place de parking sont inclus. Et pour les amateurs de tranquillité, le quartier est calme et sans vis-à-vis. A proximité, vous trouverez plusieurs écoles, comme l'École primaire Marcel Pagnol et le Collège Olivier de Serres, ainsi que des parcs pour profiter de la nature. Le tram est facilement accessible avec la station Meyzieu Gare à proximité. Le tout pour un prix de 499 000 euros. N'attendez plus pour visiter cette maison qui pourrait devenir votre nouveau chez-vous ! Contactez l'agence Guy Hoquet MEYZIEU pour plus d'infos. Copropriété de 53 lots - dont 53 lots habitation. (Pas de procédure en cours). Charges annuelles : 168 euros.
Voir plus

Référence: 2331
Bien en copropriété. Nombre de lots : 53. Charges de copropriété : 168 €.
Honoraires à la charge du vendeur.
Barème des honoraires
DPE
A
B
C
D
E
F
G
GES
A
B
C
D
E
F
G

Prêt immobilier

Vous souhaitez connaître votre capacité d’emprunt et trouver le meilleur crédit immobilier ?
Réaliser une simulation gratuite

Maison à MEYZIEU
Maison à MEYZIEU
Maison à MEYZIEU
Maison à MEYZIEU
Maison à MEYZIEU
Maison à MEYZIEU
Maison à MEYZIEU
Maison à MEYZIEU
Maison à MEYZIEU
Maison à MEYZIEU
Maison à MEYZIEU
Maison à MEYZIEU
Maison à MEYZIEU
Maison à MEYZIEU
Maison à MEYZIEU
Maison à MEYZIEU
Maison à MEYZIEU
Maison à MEYZIEU
Ce site est protégé par reCAPTCHA la Politique de confidentialité et les Conditions d’utilisation de Google s’appliquent.
Obtenir un prêt immobilier au meilleur taux ?

En poursuivant votre navigation sans modifier vos paramètres, vous acceptez l'utilisation de cookies susceptibles de réaliser des statistiques de visite. Cliquez ici pour plus d'informations