Bénéficiez des services de nos partenaires locaux soigneusement sélectionnés
pour vous accompagner dans votre parcours d'achat immobilier

Appartement à vendre t2 port fréjus - 40 m² avec balcon et parking sécurisé – idéal pour résidence secondaire ou investissement

— Frejus 83600 —
210 000 €
40 m²
2 pièces

Nos partenaires locaux
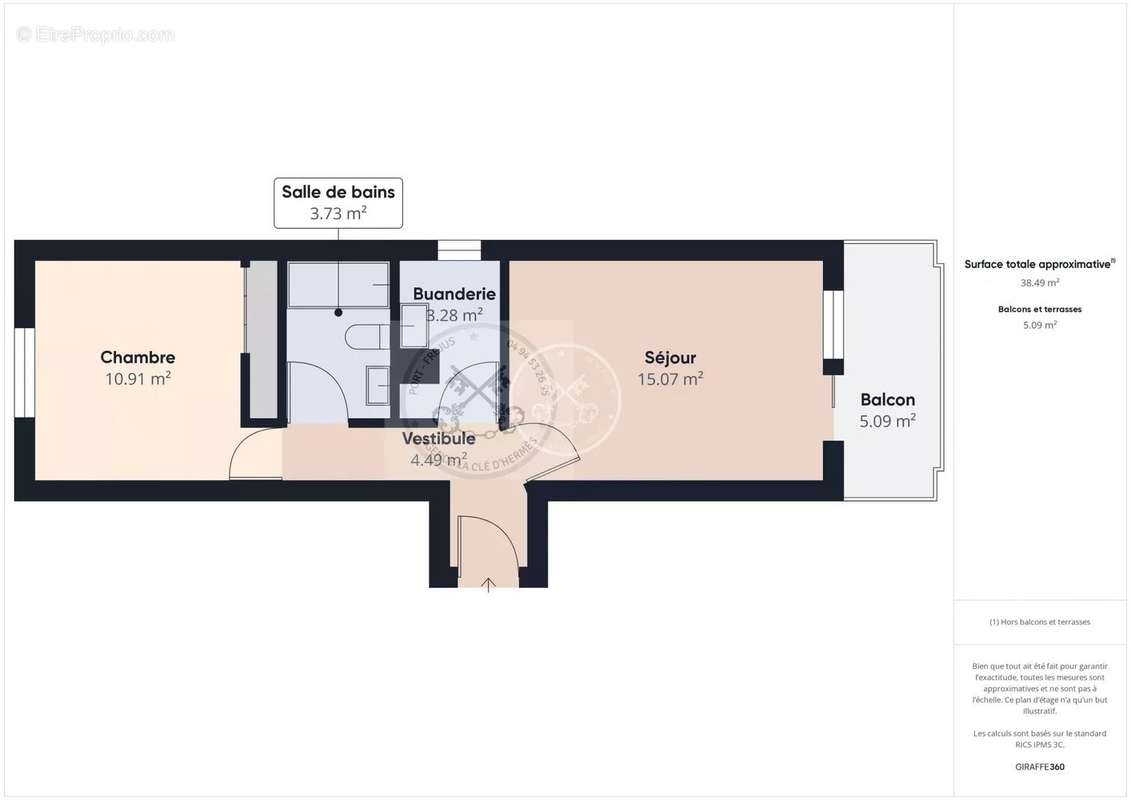
La Clé d'Hermès vous présente à la vente cet appartement T2 de 40 m² situé dans le secteur prisé de Port Fréjus, dans une résidence calme et sécurisée. Ce bien bénéficie d'une proximité idéale avec toutes les commodités : commerces, restaurants, port et plage accessibles à pied.

La copropriété bien entretenue offre un cadre agréable, avec la présence d'un gardien assurant la sécurité et la tranquillité des lieux.

Cet appartement lumineux est situé au 1er étage d'une résidence avec ascenseur. Il dispose d'un balcon de 5 m² idéal pour profiter des beaux jours, ainsi que d'un parking privatif sécurisé. L'agencement est optimal pour une vie pratique et agréable.

L'appartement se compose de :

- Une entrée,
- Un séjour spacieux de 15 m² ouvert sur le balcon,
- Une cuisine fermée,
- Une chambre de 11 m² avec vue sur un bassin et un jardin arboré,
- Une salle de bains avec WC.

Cet appartement T2 est parfait pour une résidence principale, une résidence secondaire ou un investissement locatif, notamment en location saisonnière.

Pour plus de détails, consultez la visite virtuelle 3D en cliquant sur l'icône dédiée.

Pour vous aider à visualiser le potentiel de rénovation ou de rafraîchissement du bien, certaines photos sont contractuelles et générées par l'IA.
Voir plus

Référence: 85040021
Barème des honoraires

Prêt immobilier

Vous souhaitez connaître votre capacité d’emprunt et trouver le meilleur crédit immobilier ?
Réaliser une simulation gratuite

Appartement à FREJUS
Appartement à FREJUS
Appartement à FREJUS
Appartement à FREJUS
Appartement à FREJUS
Appartement à FREJUS
Appartement à FREJUS
Appartement à FREJUS
Appartement à FREJUS
Ce site est protégé par reCAPTCHA la Politique de confidentialité et les Conditions d’utilisation de Google s’appliquent.
Obtenir un prêt immobilier au meilleur taux ?

En poursuivant votre navigation sans modifier vos paramètres, vous acceptez l'utilisation de cookies susceptibles de réaliser des statistiques de visite. Cliquez ici pour plus d'informations