Bénéficiez des services de nos partenaires locaux soigneusement sélectionnés
pour vous accompagner dans votre parcours d'achat immobilier

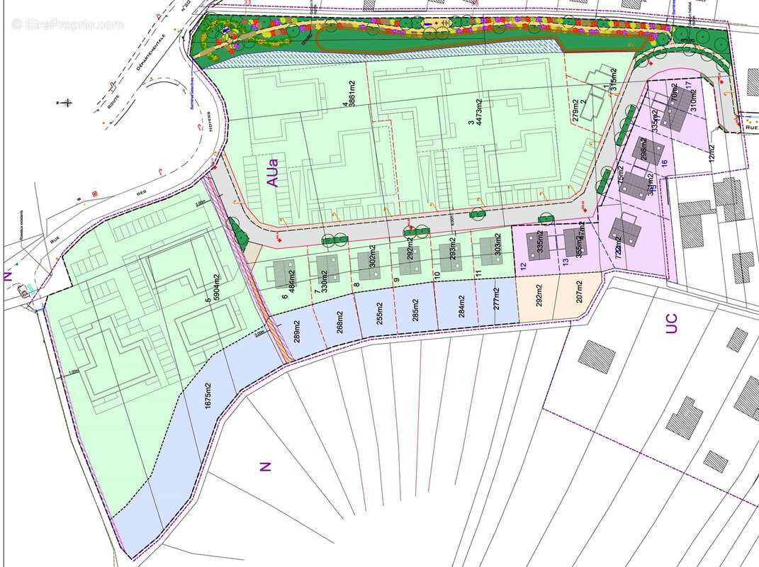
Terrains libre de constructeurs à habsheim

— Habsheim 68440 —
155 960 €
557 m²
jardin

Nos partenaires locaux
Proche des commodités et des accès autoroutiers imaginer votre projet de construction de maison à HABSHEIM ! Différents terrains à batir viabilisés et libres de constructeurs disponibles : - LOT 1 de 311 m2 : 87'080€ - LOT 6 de 772 m2 : 216'160€ - LOT 7 de 597 m2 : 167'160€ - LOT 8 de 557 m2 : 155'960€ - LOT 9 et 10 de 577 m2 : 161'560€ - LOT 11 de 583 m2 : 163'240€ Ce bien vous intéresse ? Contacter Valentin SUTTER agence SUTTER IMMO carte professionnelle no : CPI 68[Coordonnées masquées]43 192 Frais d'agence à la charge du vendeur. Les informations sur les risques auxquels ce bien est exposé sont disponibles sur le site Géorisques : www.georisques.gouv.fr. Les informations fournies sont réputées correctes au moment de la rédaction, mais leur exactitude ne peut être garantie. Toutes les mesures et les superficies mentionnées sont approximatives. Le prix de vente et les conditions peuvent être, sujets à des modifications sans préavis. Veuillez contacter nos agents immobiliers pour obtenir les informations les plus récentes et pour toute question relative à cette propriété.
Voir plus

Référence: HAB8
Honoraires d'agence de 5.76% à la charge de l'acquéreur
Barème des honoraires

Prêt immobilier

Vous souhaitez connaître votre capacité d’emprunt et trouver le meilleur crédit immobilier ?
Réaliser une simulation gratuite

Terrain à HABSHEIM
Terrain à HABSHEIM
Ce site est protégé par reCAPTCHA la Politique de confidentialité et les Conditions d’utilisation de Google s’appliquent.
Obtenir un prêt immobilier au meilleur taux ?

En poursuivant votre navigation sans modifier vos paramètres, vous acceptez l'utilisation de cookies susceptibles de réaliser des statistiques de visite. Cliquez ici pour plus d'informations