Bénéficiez des services de nos partenaires locaux soigneusement sélectionnés
pour vous accompagner dans votre parcours d'achat immobilier

Terrain villeurbanne 219 m2 vendu avec pc purgé des tiers

— Villeurbanne 69100 —
409 500 €
219 m²
jardin

Nos partenaires locaux
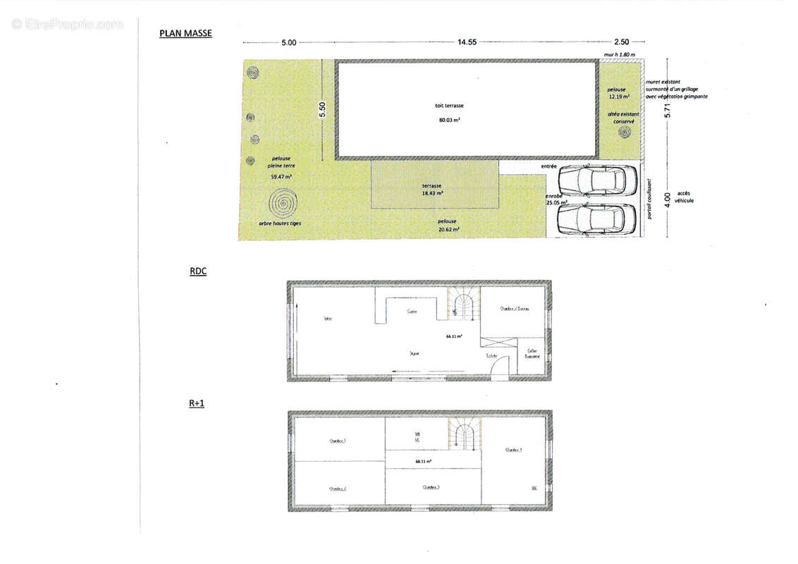
QUARTIER PRIVE "LES POULETTES" VENTE DU TERRAIN, NOUS POUVONS VOUS PROPROSER DIFFERENTS PROMOTEURS AFIN DE VOUS ACCOMPAGNER DANS LA CONSTRUCTION. BIEN RARE. La campagne à la ville. Libre constructeur. Sur parcelle de 219 m2 secteur calme et résidentiel de VILLEURBANNE. Vendu avec permis de construire purgé des tiers. Joli terrain plat, viabilisé, bien arboré avec un projet de construction de 130 M2 habitables sur 2 niveaux : Salon : 66,11m2 + cellier 5 chambres TERRASSE, TOIT TERRASSE ET JARDIN. 2 PLACES DE PARKING PRIVE A 10 min à pied du métro Gratte-Ciel, à 5 min à pied de l'avenue Roger Salengro (400 m) Le prix inclut la vente du terrain avec transfert de permis de construire purgé des tiers. La construction de la maison est à la charge de l'acquéreur. Prévoir aussi 10 000 euros pour démolition petite maison en place sur terrain (devis disponible). Les honoraires sont à la charge du vendeur. Honoraires à la charge de l'acquéreur hors frais notariés, de publicité et d'enregistrement. Pour toute information complémentaire, contactez l'agence LUGDUNUM IMMOBILIER au [Coordonnées masquées] ou au [Coordonnées masquées].
Voir plus

Référence: 71
Honoraires à la charge du vendeur.
Barème des honoraires

Prêt immobilier

Vous souhaitez connaître votre capacité d’emprunt et trouver le meilleur crédit immobilier ?
Réaliser une simulation gratuite

Terrain à VILLEURBANNE
Terrain à VILLEURBANNE
Terrain à VILLEURBANNE
Ce site est protégé par reCAPTCHA la Politique de confidentialité et les Conditions d’utilisation de Google s’appliquent.
Obtenir un prêt immobilier au meilleur taux ?

En poursuivant votre navigation sans modifier vos paramètres, vous acceptez l'utilisation de cookies susceptibles de réaliser des statistiques de visite. Cliquez ici pour plus d'informations