Bénéficiez des services de nos partenaires locaux soigneusement sélectionnés
pour vous accompagner dans votre parcours d'achat immobilier

Terrain constructible buzenval

— Rueil-Malmaison 92500 —
1 245 000 €
1 000 m²
parkingjardin

Nos partenaires locaux

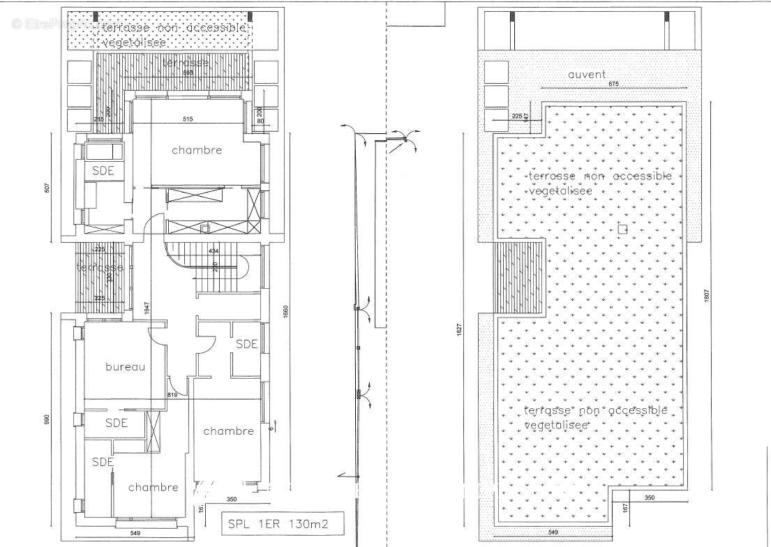
Un projet de construction neuve avec piscine, orientation principale Sud/Ouest, sur une magnifique parcelle de 1000 m2 ! L'Agence de l'Empereur vous propose de vous 'lancer' en faisant l'acquisition de ce beau terrain disposant d'un permis de construire en cours de validité, purgé de tout recours, pour la construction d'une maison contemporaine de 367 m2 avec sa piscine de 9 m.
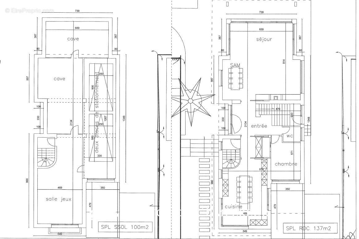
Au rez-de-chaussée 137 m2, avec une belle cuisine dînatoire, la salle à manger, le salon et une chambre.
A l'étage 130 m2 : la suite parents avec dressing et salle de bains, 3 chambres avec une salle d’eau chacune.
Au sous-sol : cave, buanderie, salle de cinéma et garage 2 voitures.
Ce bien est situé dans une très petite rue de Rueil Malmaison, côté Garches, près des Écoles privées réputées Charles Péguy, Montessori, Passy Buzenval et Daniélou à 15 mn à pied. Country Club et Hippodrome de St Cloud à 5 minutes.
Nous vous enverrons avec plaisir la présentation de ce bien unique, qui n'est pas en copropriété, ni dans un programme de plusieurs maisons.
Voir plus

Référence: 8313B
Honoraires à la charge du vendeur.
Barème des honoraires

Prêt immobilier

Vous souhaitez connaître votre capacité d’emprunt et trouver le meilleur crédit immobilier ?
Réaliser une simulation gratuite

Terrain à RUEIL-MALMAISON
Terrain à RUEIL-MALMAISON
Terrain à RUEIL-MALMAISON
Terrain à RUEIL-MALMAISON
Terrain à RUEIL-MALMAISON
Terrain à RUEIL-MALMAISON
Terrain à RUEIL-MALMAISON
Ce site est protégé par reCAPTCHA la Politique de confidentialité et les Conditions d’utilisation de Google s’appliquent.
Obtenir un prêt immobilier au meilleur taux ?

En poursuivant votre navigation sans modifier vos paramètres, vous acceptez l'utilisation de cookies susceptibles de réaliser des statistiques de visite. Cliquez ici pour plus d'informations