Appartement 81m² à pontivy

— Pontivy 56300 —
126 960 €
81 m²
4 pièces

Imaginez-vous dans un appartement qui allie le charme de l'ancien avec le confort moderne. Situé en plein coeur de Pontivy, ce bien immobilier est une véritable pépite à découvrir.

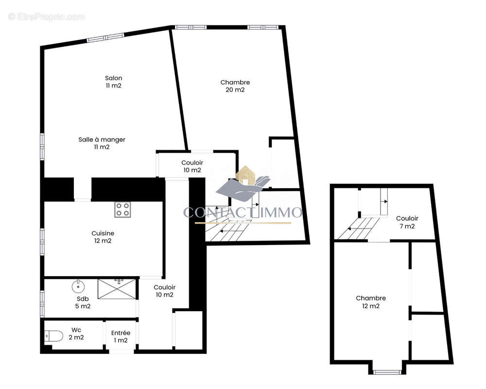
Niché au deuxième et dernier étage d'un immeuble de 1948, cet appartement T4 offre une surface habitable de 81,22 m², répartie harmonieusement entre un séjour spacieux et deux chambres lumineuses. La cuisine, indépendante et aménagée, est équipée pour vous faciliter la vie quotidienne.

Profitez d'une vue agréable sur la ville.

Un grenier complète ce bien, offrant un espace de rangement supplémentaire.

Ne laissez pas passer cette opportunité unique de vivre dans un quartier animé et bien desservi. Contactez-nous dès aujourd'hui pour organiser une visite et découvrir tous les charmes de cet appartement. Vous pourriez bien trouver votre futur chez-vous !

Cet appartement est à vendre pour la somme de 132 250 € (dont 5,8% d'honoraires à la charge de l'acquéreur) soit 125 000 € net vendeur.
Les informations sur les risques auxquels ce bien est exposé sont disponibles sur le site géorgiques : www.georisques.gouv.fr.

Honoraires inclus de 5.8% à la charge de l'acquéreur. Prix hors honoraires 120 000 €. Dans une copropriété de 6 lots. Quote-part moyenne du budget prévisionnel 750 €/an. Aucune procédure n'est en cours. Classe énergie E, Classe climat B Montant estimé des dépenses annuelles d'énergie pour un usage standard : entre 1640.00 € et 2260.00 € sur les années 2021, 2022 et 2023 (abonnements compris). Les informations sur les risques auxquels ce bien est exposé sont disponibles sur le site Géorisques : georisques.gouv.fr.

Votre conseiller CONTACTIMMO : Gerante - Alexandra LEON
Carte T CPI56[Coordonnées masquées]330153
RCP 6724011204
Voir plus

Référence: VA1925-CONTACTIMMO56
Bien en copropriété. Nombre de lots : 6. Charges de copropriété : 750 €.
Honoraires d'agence de 5.8% à la charge de l'acquéreur
Barème des honoraires
DPE
A
B
C
D
E
F
G
GES
A
B
C
D
E
F
G

Prêt immobilier

Vous souhaitez connaître votre capacité d’emprunt et trouver le meilleur crédit immobilier ?
Réaliser une simulation gratuite

séjour-salon - Appartement à PONTIVY
séjour-salon
séjour-salon - Appartement à PONTIVY
séjour-salon
cuisine aménagée/équipée - Appartement à PONTIVY
cuisine aménagée/équipée
Appartement à PONTIVY
chambre 1 - Appartement à PONTIVY
chambre 1
salle d'eau - Appartement à PONTIVY
salle d'eau
chambre 2 - Appartement à PONTIVY
chambre 2
plan 2D - Appartement à PONTIVY
plan 2D
Ce site est protégé par reCAPTCHA la Politique de confidentialité et les Conditions d’utilisation de Google s’appliquent.
Obtenir un prêt immobilier au meilleur taux ?

En poursuivant votre navigation sans modifier vos paramètres, vous acceptez l'utilisation de cookies susceptibles de réaliser des statistiques de visite. Cliquez ici pour plus d'informations