À vendre : 2 appartements t4 à rénover entièrement

— Saint-Benoit 97470 —
88 000 €
8 pièces

Découvrez ces deux s appartements de type T4, une opportunité idéale de rénovation afin de les mettent à votre goût et d’y faire un projet de résidence principale ou d’investissement locatif.

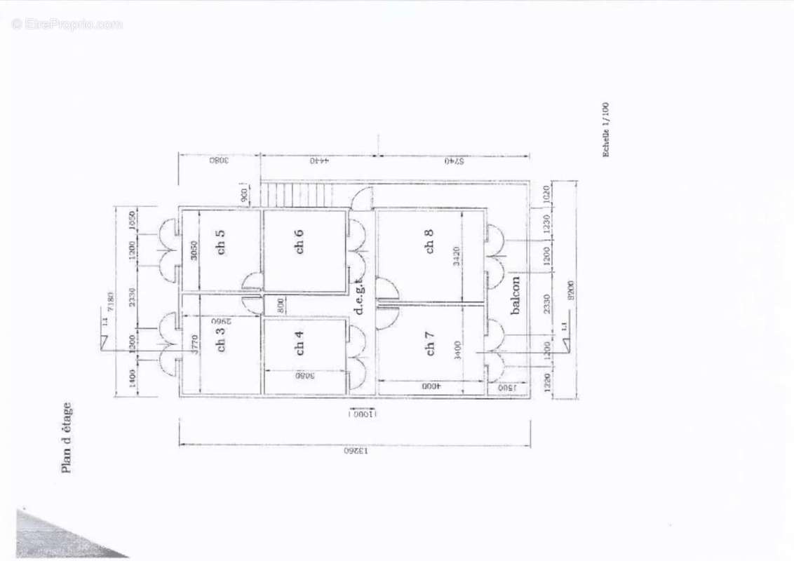
Lot 2 : Appartement T4 au rez-de-chaussée
• Emplacement : Bâtiment A, rez-de-chaussée
• Composition :
o 3 chambres
o Séjour
o Cuisine
o Salle de bains
o WC
o Dégagement pratique et débarras
o Cour privée en jouissance exclusive
• Atout principal : La cour privative pour profiter d’un extérieur

Lot 3 : Appartement T4 au premier étage
• Emplacement : Bâtiment A, premier étage
• Composition :
o 3 chambres
o Séjour
o Cuisine
o Salle de bains
o WC
o Couloir et escalier offrant une belle circulation intérieure
• Atout principal : Une disposition bien pensée pour une vie de famille sereine.

• PRIX : 88 000€ honoraires d’agence inclus
• Prix hors honoraires : 80 000€
• Honoraires : 10% TTC à la charge de l'acquéreur
Ces biens ne sont pas soumis au DPE et sont soumis aux Géorisques.
• Pour consulter les risques associés, visitez le site Géorisques : www.georisques.gouv.fr
Pour plus d'informations ou pour organiser une visite, contactez-nous au [Coordonnées masquées] Nos honoraires d'agence sont disponibles sur notre site internet.

Ne manquez pas cette double opportunité d’investissement locatif ou de résidence principale.
Voir plus

Barème des honoraires

Prêt immobilier

Vous souhaitez connaître votre capacité d’emprunt et trouver le meilleur crédit immobilier ?
Réaliser une simulation gratuite

Appartement à SAINT-BENOIT
Appartement à SAINT-BENOIT
Appartement à SAINT-BENOIT
Ce site est protégé par reCAPTCHA la Politique de confidentialité et les Conditions d’utilisation de Google s’appliquent.
Obtenir un prêt immobilier au meilleur taux ?

En poursuivant votre navigation sans modifier vos paramètres, vous acceptez l'utilisation de cookies susceptibles de réaliser des statistiques de visite. Cliquez ici pour plus d'informations