Bénéficiez des services de nos partenaires locaux soigneusement sélectionnés
pour vous accompagner dans votre parcours d'achat immobilier

Appartement 224 m² à Trelissac

— Trelissac 24750 —
199 000 €
224 m² / 546 m²
parking

Nos partenaires locaux
Situé en plein coeur de Trélissac, à proximité immédiate des commerces et commodités, cet ensemble immobilier offre une opportunité rare pour investisseurs ou porteurs de projets à la recherche d'un bien à fort potentiel de valorisation.

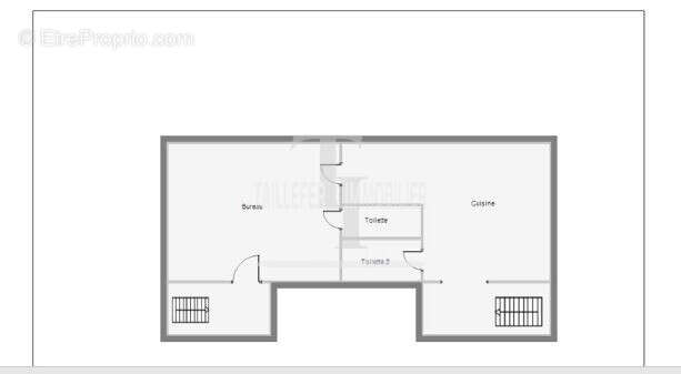
Implanté sur un terrain de plus de 500 m², l'immeuble se compose de :

Un appartement F2 de 34 m²

Un appartement F5 spacieux de 103 m²

Un local commercial de 88 m² avec espace de vente et arrière-boutique

L'ensemble est à rénover, constituant une véritable toile blanche pour concrétiser vos projets : rénovation, division, location, transformation en habitation ou activité professionnelle. Les possibilités sont nombreuses et permettent d'envisager une belle plus-value.

Les parties communes sont à rafraîchir et les intérieurs à repenser, laissant libre cours à votre créativité et à une optimisation du rendement locatif.

Côté praticité, le bien dispose de :

Parking privé

Garage

Cinq caves, idéales pour le stockage

Un bien rare sur le secteur, parfait pour investisseurs, professionnels ou particuliers souhaitant créer un projet sur-mesure au coeur d'une commune dynamique.

À visiter sans tarder.
Contact : David – [Coordonnées masquées]

Honoraires à la charge du vendeur. Classe énergie E, Classe climat B Montant moyen estimé des dépenses annuelles d'énergie pour un usage standard, établi à partir des prix de l'énergie de l'année 2021 : entre 1155.00 et 1563.00 €. Les informations sur les risques auxquels ce bien est exposé sont disponibles sur le site Géorisques : georisques.gouv.fr.

Votre conseiller Taillefer immobilier : David VESTRY
Agent commercial (Entreprise individuelle)
RSAC 901 057 455 R.S.A.C Périgueux
Voir plus

Référence: VI143-TAILLEFERIMMO
Honoraires à la charge du vendeur.
Barème des honoraires
DPE
A
B
C
D
E
F
G
GES
A
B
C
D
E
F
G
Appartement à TRELISSAC
Appartement à TRELISSAC
Appartement à TRELISSAC
Appartement à TRELISSAC
Appartement à TRELISSAC
Appartement à TRELISSAC
Appartement à TRELISSAC
Appartement à TRELISSAC
Appartement à TRELISSAC
Géorisques

Les informations sur les risques auxquels ce bien est exposé sont disponibles sur le site Géorisques : www.georisques.gouv.fr

Ce site est protégé par hCaptcha Politique de confidentialité et Conditions d’utilisation s’appliquent.

En poursuivant votre navigation sans modifier vos paramètres, vous acceptez l'utilisation de cookies susceptibles de réaliser des statistiques de visite. Cliquez ici pour plus d'informations