Bénéficiez des services de nos partenaires locaux soigneusement sélectionnés
pour vous accompagner dans votre parcours d'achat immobilier

3%.com - en exclusivité wingen-sur-moder, f4 duplex, 3 chamb

— Wingen-Sur-Moder 67290 —
169 900 €
86 m²
4 pièces
parking

Nos partenaires locaux
!! Déjà VENDU !!

3%.COM - En EXCLUSIVITÉ à WINGEN-SUR-MODER, dans le parc naturel régional des Vosges du Nord, appartement en duplex 4 pièces de 86m2/106m2 au sol, situé au 3ème et dernier étage sans ascenseur --- 1 grand garage --- situation très au calme.

--- Vous recherchez un logement fonctionnel et lumineux, aménager avec goûts, la tranquillité dans un environnement apprécié pour sa qualité de vie, alors n'hésitez pas et venez visiter cet appartement.

--- Vous trouverez d'autres photos et croquis sur notre site troispourcent.

-- Composition:
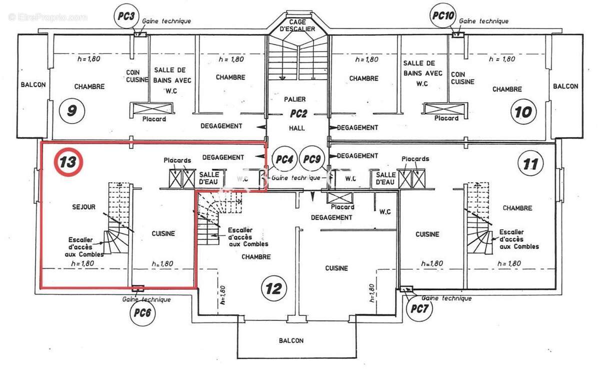
-- Au premier niveau:
-- 1 couloir équipé de rangements.
-- 1 wc équipé d'un lave-main.
-- 1 dégagement équipé de 2 placards.
-- 1 cuisine équipée (11,5m2).
-- 1 grande pièce de vie salon/salle à manger (23,5m2) avec accès au second niveau.

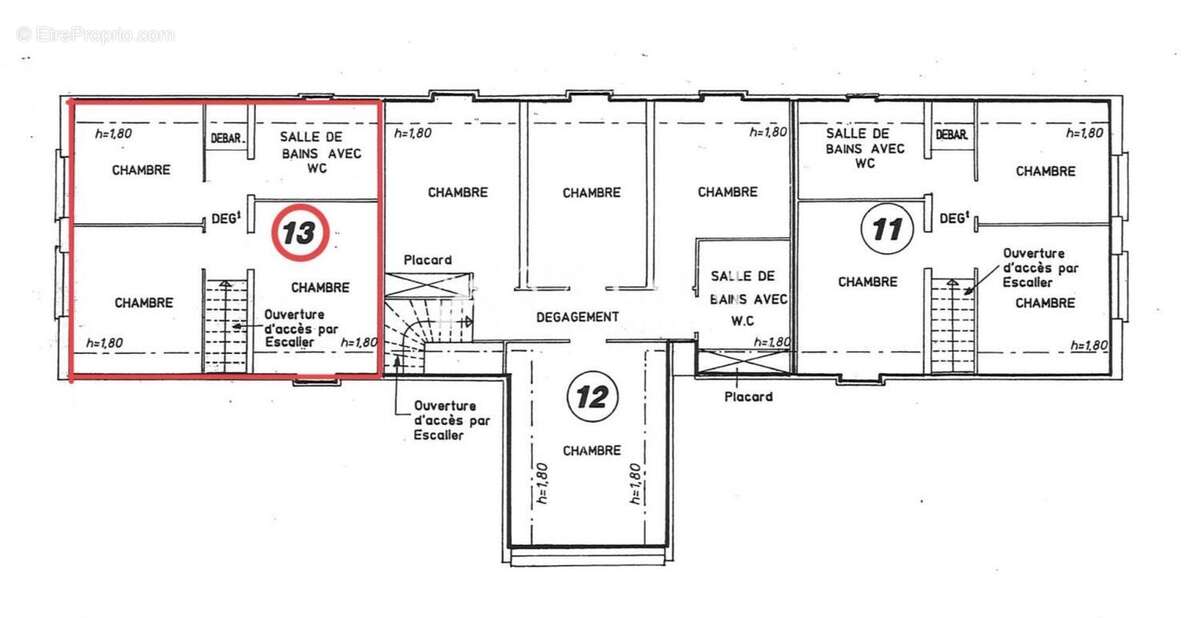
-- Au deuxième niveau:
-- 1 couloir équipé de rangements.
-- 3 chambres.
-- 1 salle d'eau (douche, wc, simple vasque, emplacement machine à laver).

-- Autres informations:
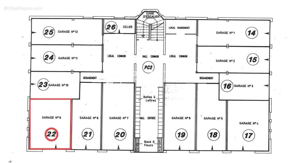
-- 1 grand garage avec possibilité de stockage.
-- Isolation intérieure.
-- Fenêtres pvc et velux double vitrage.
-- Chauffage électrique individuel (radiateurs à inertie).
-- Chauffe-eau électrique (4 ans).
-- DPE: C.
-- La copropriété est constituée de 21 logements sur (59 lots - garages, parkings, logements...).
-- Charges courantes/mois de copropriété: EUR 99/mois, (eau froide, électricité communs, assurance copro, etc...) soit EUR 1188/an.
-- Taxe foncière ~450EUR.
-- Proche de toutes commodités (École, commerces, restaurants, pharmacie, banque...)

--- Principales distances (route):
Bouxwiller : 29 min, 22 km.
Saverne : 37 min, 32 km.
Hochfelden : 39 min, 35 km.
Haguenau : 57 min, 46 km.
Strasbourg centre : 60 min, 67 km.

--Contactez Sébastien au [Coordonnées masquées] ou [Coordonnées masquées].
Du lundi au samedi de 9h00 à 19h00.
Agent Commercial en Immobilier, inscrit au RSAC Strasbourg No 797 569 951.
-- Agence ROTH IMMOBILIER, RCS 803 863 638, franchisé 3%.COM.
-- Réseau national à honoraires réduits: 3% TTC
Les informations sur les risques auxquels ce bien est exposé sont disponibles sur le site Géorisques : www.georisques.gouv.fr - Annonce rédigée et publiée par un Agent Mandataire -
Voir plus

Référence: 55_V1000057843
Bien en copropriété. Nombre de lots : 59. Charges de copropriété : 99 €.
Honoraires d'agence de 3.66% à la charge de l'acquéreur
DPE
A
B
C
D
E
F
G
GES
A
B
C
D
E
F
G

Prêt immobilier

Vous souhaitez connaître votre capacité d’emprunt et trouver le meilleur crédit immobilier ?
Réaliser une simulation gratuite

Appartement à WINGEN-SUR-MODER
Appartement à WINGEN-SUR-MODER
Appartement à WINGEN-SUR-MODER
Appartement à WINGEN-SUR-MODER
Appartement à WINGEN-SUR-MODER
Appartement à WINGEN-SUR-MODER
Appartement à WINGEN-SUR-MODER
Appartement à WINGEN-SUR-MODER
Appartement à WINGEN-SUR-MODER
Appartement à WINGEN-SUR-MODER
Appartement à WINGEN-SUR-MODER
Appartement à WINGEN-SUR-MODER
Appartement à WINGEN-SUR-MODER
Appartement à WINGEN-SUR-MODER
Appartement à WINGEN-SUR-MODER
Appartement à WINGEN-SUR-MODER
Appartement à WINGEN-SUR-MODER
Appartement à WINGEN-SUR-MODER
Appartement à WINGEN-SUR-MODER
Appartement à WINGEN-SUR-MODER
Ce site est protégé par reCAPTCHA la Politique de confidentialité et les Conditions d’utilisation de Google s’appliquent.
Obtenir un prêt immobilier au meilleur taux ?

En poursuivant votre navigation sans modifier vos paramètres, vous acceptez l'utilisation de cookies susceptibles de réaliser des statistiques de visite. Cliquez ici pour plus d'informations