Bénéficiez des services de nos partenaires locaux soigneusement sélectionnés
pour vous accompagner dans votre parcours d'achat immobilier

Maison orleans 3 pièce(s) 86 m2

— Orleans 45000 —
238 500 €
86 m² / 200 m²
3 pièces
jardin

Nos partenaires locaux
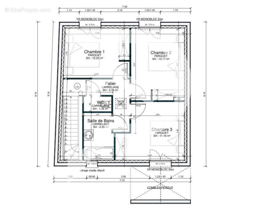
Profitez de l'opportunité de devenir propriétaire d'une maison neuve en cours de construction. Cette maison individuelle de 4 pièces, aux finitions modernes et soignées, sera livrée en vente en l'état futur d'achèvement (VEFA) Une pièce de vie spacieuse avec de grandes baies vitrées, baignée de lumière naturelle. Cuisine ouverte avec possibilité de personnalisation selon vos préférences, wc et garage. A l'étage : 3 chambres confortables, salle de bain et un WC séparé. Chauffage et isolation conformes aux dernières normes énergétiques (RT 2012 ou RE 2020), assurant confort et économies d'énergie. Aménagement extérieur : Le jardin privatif et la terrasse sont parfaits pour profiter des journées ensoleillées, aménager un coin détente ou encore organiser des repas en plein air avec vos proches. FRAIS DE NOTAIRE RÉDUITS !! PS : Programme de 3 maisons identiques, nous vous proposons de vous rapprocher de l'agence afin d'avoir plus ample d'informations sur le programme.
Voir plus

Référence: HEM
Honoraires à la charge du vendeur.

Prêt immobilier

Vous souhaitez connaître votre capacité d’emprunt et trouver le meilleur crédit immobilier ?
Réaliser une simulation gratuite

Maison à ORLEANS
Maison à ORLEANS
Maison à ORLEANS
Ce site est protégé par reCAPTCHA la Politique de confidentialité et les Conditions d’utilisation de Google s’appliquent.
Obtenir un prêt immobilier au meilleur taux ?

En poursuivant votre navigation sans modifier vos paramètres, vous acceptez l'utilisation de cookies susceptibles de réaliser des statistiques de visite. Cliquez ici pour plus d'informations