Appartement f4 de 65 m² pour investisseur

— Saint-Germain-Les-Arpajon 91180 —
135 000 €
65 m²
4 pièces

À vendre : Appartement F4 de 65 m² avec locataire fidèle – Saint-Germain-les-Arpajons

Investisseurs, votre futur pépite est ici ! Ce charmant appartement F4 de 65 m², situé à Saint-Germain-les-Arpajons, n'est pas seulement un bien immobilier, c'est aussi un abonnement au revenu locatif. En effet, votre futur locataire est déjà là… et depuis 20 ans ! Plus fidèle qu'un chat, elle ne bouge pas et paye son loyer comme du papier à musique.

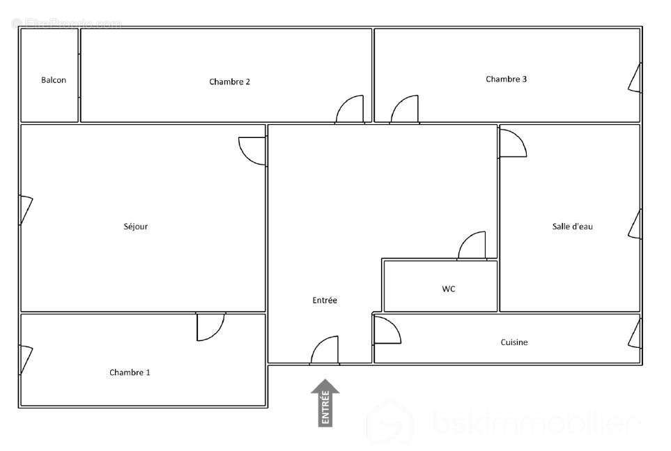
À l'intérieur ? Trois chambres prêtes à accueillir rêves et ronflements, un salon spacieux pour les soirées canapé, une cuisine où même vos pâtes auront du style, et une salle d'eau pratique. Le tout avec un hall d'entrée et des WC séparés, pour toujours avoir un peu d'intimité.

Cette location représente un atout précieux pour ceux qui recherchent un investissement serein. Alors, prêt à acheter un appartement et une tranquillité d'esprit ?
Contactez-moi

Montant moyen de la quote-part annuelle de charges (budget prévisionnel) (Chauffage + ECS + EFS) : 3000€ soit 250€ par mois.

Cette annonce référence 257877 vous est présentée par votre agent commercial BSK Immobilier MAXIME CAPDEVIOLLE (EI) immatriculé au RSAC de EVRY (91000) sous le numéro 87874869800015.

Prix du bien : 135 000,00 €
Les honoraires d'agence sont à la charge du vendeur.

A propos de la copropriété :
Pas de procédure en cours.
Nombre de lots : 160
Charges prévisionnelles annuelles : 3 000,00 €

A propos des performances énergétiques :
Date de réalisation du diagnostic énergétique : 11/10/2023
Score DPE : 280 kWhEP/m²/an
Score GES : 57 kgepCO2/m²/an
Montant estimé des dépenses annuelles d'énergie pour un usage standard : entre 1030.00 € et 1430.00 € par an. Prix moyens des énergies indexés sur l'année 2021 (abonnements compris).

Les informations sur les risques auxquels ce bien est exposé sont disponibles sur le site Géorisques : www.georisques.gouv.fr
Voir plus

Référence: 257877
Bien en copropriété. Nombre de lots : 160. Charges de copropriété : 250 €.
Honoraires à la charge du vendeur.
DPE
A
B
C
D
E
F
G
GES
A
B
C
D
E
F
G

Prêt immobilier

Vous souhaitez connaître votre capacité d’emprunt et trouver le meilleur crédit immobilier ?
Réaliser une simulation gratuite

Appartement à SAINT-GERMAIN-LES-ARPAJON
Appartement à SAINT-GERMAIN-LES-ARPAJON
Appartement à SAINT-GERMAIN-LES-ARPAJON
Appartement à SAINT-GERMAIN-LES-ARPAJON
Appartement à SAINT-GERMAIN-LES-ARPAJON
Appartement à SAINT-GERMAIN-LES-ARPAJON
Appartement à SAINT-GERMAIN-LES-ARPAJON
Ce site est protégé par reCAPTCHA la Politique de confidentialité et les Conditions d’utilisation de Google s’appliquent.
Obtenir un prêt immobilier au meilleur taux ?

En poursuivant votre navigation sans modifier vos paramètres, vous acceptez l'utilisation de cookies susceptibles de réaliser des statistiques de visite. Cliquez ici pour plus d'informations