Appartement 66m² à ernolsheim-bruche

— Ernolsheim-Bruche 67120 —
280 000 €
66 m²
3 pièces
parkingbalcon/terrasseascenseur

Découvrez votre Nid de Rêve à Ernolsheim-Bruche

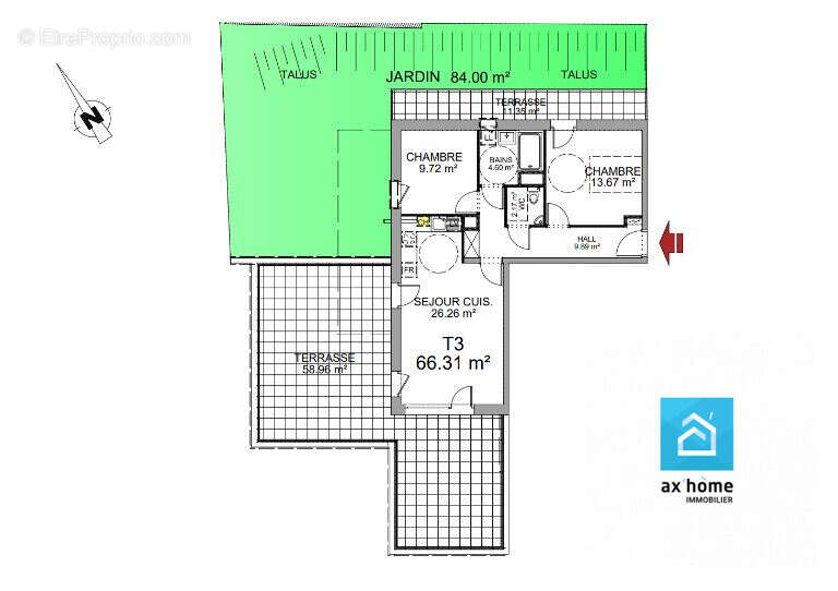
L'appartement se compose de trois pièces principales, dont un séjour / cuisine ouverte lumineux de 26 m², idéal pour recevoir vos proches. Les deux chambres, spacieuses et baignées de lumière naturelle, offrent un cadre reposant pour des nuits paisibles. La salle de bains, moderne et fonctionnelle, les WC séparés complètent cet espace de vie harmonieux.

Caractéristiques :
- Logement 3 pièces
- Livraison prévue : 4e trimestre 2026
- Isolation RE2020 : performances énergétiques optimisées
- Chauffage : individuel au sol, au gaz
- Confort : volets motorisés, ascenseur accessible PMR
- Prestations de qualité : choix de carrelages, parquets, placards aménagés, WC suspendu, cellier
- Personnalisation : possibilité de personnaliser les finitions intérieures
- Espaces extérieurs pour chaque logement

Points forts :
- Ascenseur
- Terrasse et jardin privatif (145 m²)
- Prestations grand confort
- Possibilité de visiter notre logement témoin sur simple demande

Vous souhaitez en savoir plus ou programmer une visite? ?
Contactez nous
• AX'HOME IMMOBILIER
? [Coordonnées masquées] -
?? [Coordonnées masquées] www.axhome.immo

Deux agences pour plus de proximité :
- 104 A Route de Saverne - Oberhausbergen
- 33 Allée de l'Economie - Wiwersheim

Les informations sur les risques auxquels ce bien est exposé sont disponibles sur le site Géorisques : www.georisques.gouv.fr.
Le DPE sera fourni à réception du logement.

Honoraires à la charge du vendeur. Dans une copropriété de 21 lots. Aucune procédure n'est en cours. Non soumis au DPE. Les informations sur les risques auxquels ce bien est exposé sont disponibles sur le site Géorisques : georisques.gouv.fr.

Carte pro. CPI 67[Coordonnées masquées]14808
AC ADC 67[Coordonnées masquées]43374.
Ax'Home Immobilier - 2 agences de proximité pour mieux vous accompagner.

Oberhausbergen - 104A Route de Saverne (en face de Prowin)
Wiwersheim - 33 Allée de l'Economie (Galerie 'Au Jardin des Sens' au dessus d'Esprit Pain)
Voir plus

Référence: VA6509-AXHOME2
Bien en copropriété. Nombre de lots : 21.
Honoraires à la charge du vendeur.
Barème des honoraires

Prêt immobilier

Vous souhaitez connaître votre capacité d’emprunt et trouver le meilleur crédit immobilier ?
Réaliser une simulation gratuite

Appartement à ERNOLSHEIM-BRUCHE
Appartement à ERNOLSHEIM-BRUCHE
Appartement à ERNOLSHEIM-BRUCHE
Appartement à ERNOLSHEIM-BRUCHE
Appartement à ERNOLSHEIM-BRUCHE
Ce site est protégé par reCAPTCHA la Politique de confidentialité et les Conditions d’utilisation de Google s’appliquent.
Obtenir un prêt immobilier au meilleur taux ?

En poursuivant votre navigation sans modifier vos paramètres, vous acceptez l'utilisation de cookies susceptibles de réaliser des statistiques de visite. Cliquez ici pour plus d'informations