Bénéficiez des services de nos partenaires locaux soigneusement sélectionnés
pour vous accompagner dans votre parcours d'achat immobilier

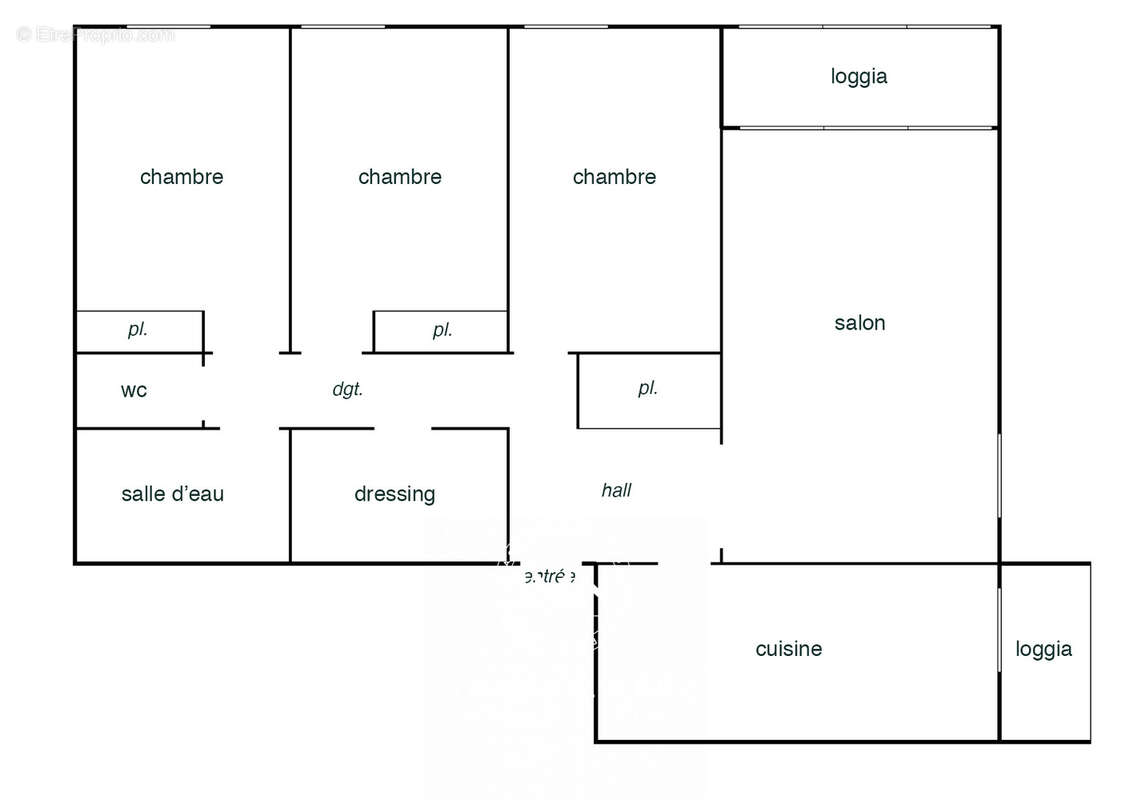
Appartement 4 pieces residence les lions

— Marseille-14e 13014 —
118 900 €
82 m²
4 pièces
balcon/terrasse

Nos partenaires locaux
L'IMMOBILIERE MARSEILLE NORD VOUS PROPOSE : RESIDENCE LES LIONS
Un appartement de type 4 comprenant : un hall d'entrée, un sejour, une cuisine, 3 chambres, une salle de bain, WC, dégagement, une loggia, un balcon, une place de parking et une cave.
Résidence fermée, sécurisée et entretenue. Espace vert, jeux d'enfants. A proximité des commerces et des axes autoroutiers.
Nombres de lots : 1 100 ; Charges annuelles : 2 600 € ; Taxe fonciere : 1 480 €.
Actuellement loués 980 € charges comprises.
Tel:[Coordonnées masquées] // [Coordonnées masquées]
https://www.immobiliere-marseille-nord.fr/vente/13-bouches-du-rhone/1-marseille/appartement-4-pieces-residence-les-lions/1201-appartement
Frais d'agence inclus. Mdt : 001807 IMMOBILIERE MARSEILLE NORD134 Avenue de Saint-Louis 13015 MARSEILLE[Coordonnées masquées]
Voir plus

Référence: 001807
Bien en copropriété. Charges de copropriété : 2600 €.
Barème des honoraires
DPE
A
B
C
D
E
F
G
GES
A
B
C
D
E
F
G

Prêt immobilier

Vous souhaitez connaître votre capacité d’emprunt et trouver le meilleur crédit immobilier ?
Réaliser une simulation gratuite

Appartement à MARSEILLE-14E
Appartement à MARSEILLE-14E
Appartement à MARSEILLE-14E
Appartement à MARSEILLE-14E
Appartement à MARSEILLE-14E
Appartement à MARSEILLE-14E
Appartement à MARSEILLE-14E
Appartement à MARSEILLE-14E
Appartement à MARSEILLE-14E
Ce site est protégé par reCAPTCHA la Politique de confidentialité et les Conditions d’utilisation de Google s’appliquent.
Obtenir un prêt immobilier au meilleur taux ?

En poursuivant votre navigation sans modifier vos paramètres, vous acceptez l'utilisation de cookies susceptibles de réaliser des statistiques de visite. Cliquez ici pour plus d'informations