Bénéficiez des services de nos partenaires locaux soigneusement sélectionnés
pour vous accompagner dans votre parcours d'achat immobilier

3%.com - exclusivité à dauendorf f3 de 55m2,garage et parkin

— Dauendorf 67350 —
156 000 €
55 m²
3 pièces
parkingbalcon/terrasse

Nos partenaires locaux
!! Déjà VENDU !!

3%.COM - En Exclusivité à DAUENDORF (Rue de le mésange), très bel appartement de 3 pièces de 55m2 situé au 1er étage sans ascenseur --- 1 garage et 1 parking extérieur complètent ce bien.

--- Situation très au calme ---

--- Copropriété bien tenue de 2 étages érigée en 2006.

--- Vous recherchez un logement fonctionnel, sans travaux, la tranquillité, dans un environnement apprécié pour sa qualité de vie, alors n'hésitez pas et venez visiter cet appartement.

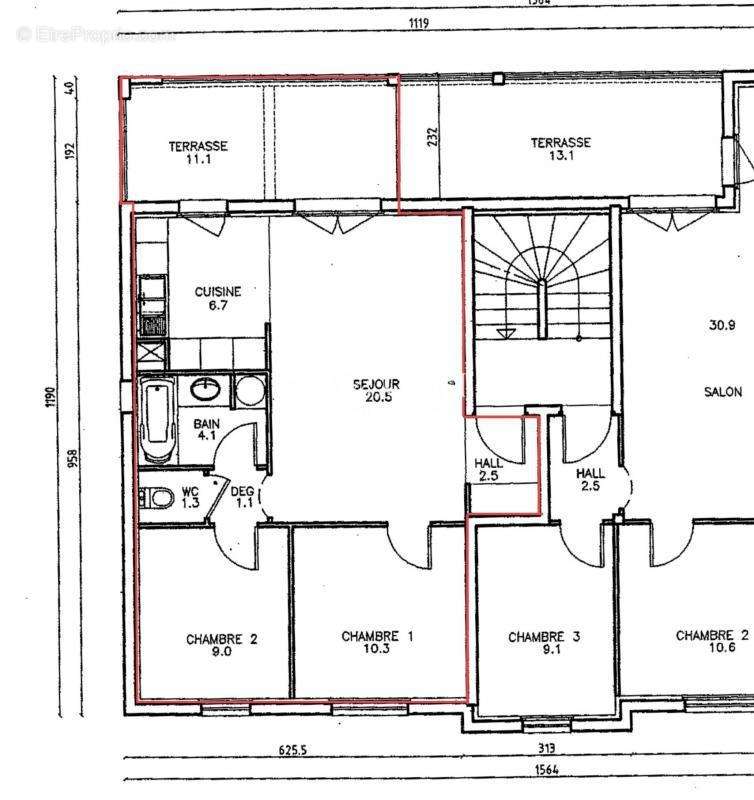
Composition:
-- 1 petit dégagement donnant directement sur la pièce de vie et équipé de rangements intégrés.
-- 1 espace séjour/cuisine équipée de ~27m2 donnant sur un grand balcon/terrasse couverte.
-- 1 dégagement.
-- 1 chambre (~10m2).
-- 1 chambre (~9m2).
-- 1 salle d'eau (douche, lavabo simple vasque, emplacement machine à laver).
-- 1 toilette séparé.

Autres informations:
-- AUCUNS TRAVAUX À PRÉVOIR.
-- 1 très belle terrasse couverte et sans vis-à-vis d'environ 10m2.
-- 1 garage.
-- 1 place de parking extérieure.
-- Bien soumis à la copropriété.
-- La copropriété est composée de 7 logements (58 lots sur 3 bâtiments).
-- Charges courantes/an de copropriété: 1243EUR/an soit 104EUR/mois (eau froide, électricité communs, entretiens des communs, honoraires syndic, assurance copro, etc...).
-- Chauffage individuel électrique (chauffage au sol dans la pièce de vie).
-- DPE: D.
-- Pas d'anomalies au diagnostic électrique.
-- Isolation intérieure.
-- Fenêtres PVC double vitrage.
-- Commodités à proximité (coiffeur, restaurants, école primaire, boucherie)
-- Taxe foncière : 302EUR

-- Principales distances:
Pfaffenhoffen: 7 min, 4 km.
Haguenau: 19 min, 13 km.
Brumath: 16 min, 14 km.
Schilt. Parc Euro Entrep: 27 min, 30 km.
Strasbourg-centre: 36 min, 34 km.

--Contactez Sébastien au [Coordonnées masquées] ou [Coordonnées masquées].
Du lundi au samedi de 9h00 à 19h00.
Agent Commercial en Immobilier, inscrit au RSAC Strasbourg No 797 569 951.

-- Agence Immobilière ROTH IMMOBILIER Sarl, franchisé 3%.COM, RCS 803 863 638.
-- Agence et vitrines à Hochfelden, siège à Gimbrett-Kochersberg.
-- Réseau national à honoraires réduits: 3% TTC
Les informations sur les risques auxquels ce bien est exposé sont disponibles sur le site Géorisques : www.georisques.gouv.fr - Annonce rédigée et publiée par un Agent Mandataire -
Voir plus

Référence: 55_V1000056256
Bien en copropriété. Nombre de lots : 58. Charges de copropriété : 103 €.
Honoraires d'agence de 4% à la charge de l'acquéreur
DPE
A
B
C
D
E
F
G
GES
A
B
C
D
E
F
G

Prêt immobilier

Vous souhaitez connaître votre capacité d’emprunt et trouver le meilleur crédit immobilier ?
Réaliser une simulation gratuite

Appartement à DAUENDORF
Appartement à DAUENDORF
Appartement à DAUENDORF
Appartement à DAUENDORF
Appartement à DAUENDORF
Appartement à DAUENDORF
Appartement à DAUENDORF
Appartement à DAUENDORF
Appartement à DAUENDORF
Appartement à DAUENDORF
Appartement à DAUENDORF
Appartement à DAUENDORF
Appartement à DAUENDORF
Appartement à DAUENDORF
Appartement à DAUENDORF
Appartement à DAUENDORF
Appartement à DAUENDORF
Ce site est protégé par reCAPTCHA la Politique de confidentialité et les Conditions d’utilisation de Google s’appliquent.
Obtenir un prêt immobilier au meilleur taux ?

En poursuivant votre navigation sans modifier vos paramètres, vous acceptez l'utilisation de cookies susceptibles de réaliser des statistiques de visite. Cliquez ici pour plus d'informations