Bénéficiez des services de nos partenaires locaux soigneusement sélectionnés
pour vous accompagner dans votre parcours d'achat immobilier

Magnifique propriété - mauprévoir

— Mauprevoir 86460 —
260 000 €
243 m² / 3 080 m²
10 pièces
parkingbalcon/terrassejardin

Nos partenaires locaux
Découvrez cette propriété unique située au coeur d'un charmant village du Sud Vienne, à proximité immédiate des commodités (commerces, école, centre de santé, pharmacie, boulangerie...).
Ce bien d'exception allie charme de l'ancien et potentiel illimité.
Autrefois utilisé comme commerce, il vous offre de vastes volumes baignés de lumière et une architecture pleine de caractère.
Idéal pour un projet professionnel ou associatif, ce lieu saura séduire les esprits créatifs en quête d'un espace à transformer en lieu d'accueil au public, comme chambres d'hôtes de prestige, restaurant raffiné, espace événementiel...
.
Laissez-vous transporter par son majestueux escalier en pierre d'époque, symbole de l'élégance et du charme d'autrefois, dans une demeure qui vous invite à écrire de nouvelles pages d'histoire.
Offrant actuellement 4 chambres spacieuses, la partie habitation rénovée est parfaite pour accueillir une grande famille ou pour ceux qui recherchent des espaces généreux.
Véritable couteau suisse, ce bien ouvre le champs des possibles à vos projets, grâce à ses différentes facettes.
.
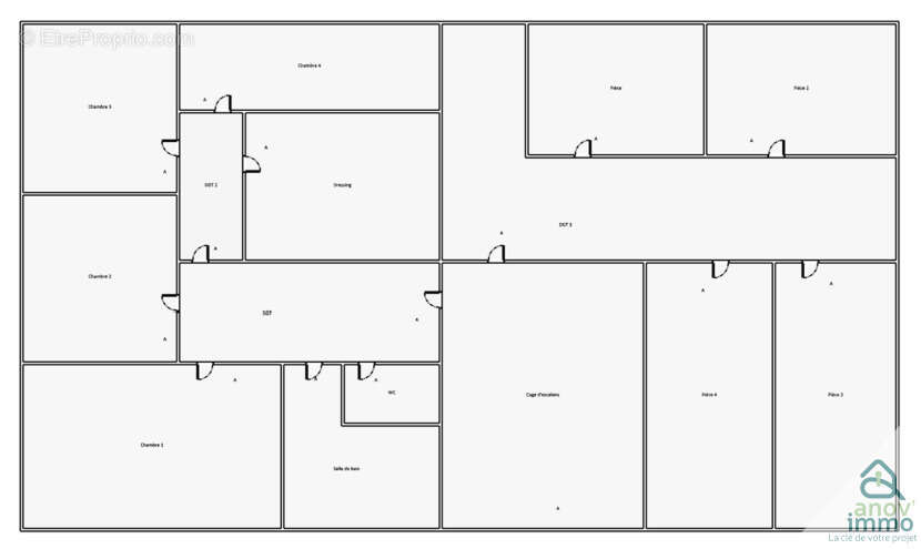
Elle se compose de:
.
Au RDC :
- 1 ENTREE indépendant
- 1 belle CUISINE entièrement aménagée et équipée
- 1 grande PIECE DE VIE lumineuse, comprenant un espace SALON et un espace SALLE A MANGER
- 1 SALLE D'EAU
- 1 WC indépendant
- 1 ARRIERE CUISINE
- 1 CHAUFFERIE
- 2 PIECES faisant actuellement office de remise, pouvant être aménagées par exemple, en chambres
.
Au 1er étage :
- 4 CHAMBRES spacieuses dont 1 avec placards
- 1 DRESSING
- 1 grande SALLE DE BAINS
- 1 WC indépendant
- La deuxième partie du 1er étage est composée de 4 PIECES aménageables (112m2)
.
Au 2ème étage :
- COMBLES AMENAGEABLES en 3 parties (212m2)

Une grande terrasse dotée d'un barbecue, idéale pour les repas en plein air et les moments de convivialité, une grande cour intérieure, ainsi qu'un jardin enchanteur, clos et arboré d'arbres fruitiers viendront peaufiner la visite.
L'atelier, l'appenti et les dépendances offrent un potentiel incroyable de 200m2 pour du stockage, des loisirs ou bien, pour une activité professionnelle.
.
CARACTERISTIQUES:
- Années de construction : 1900 et 1946
- Surface habitable : 248 m2
- Superficie terrain : 3 080 m2
- Assainissement : tout à l'égout
- DPE : C / GES : C
- Huisseries : double vitrage bois et volets bois
- Chauffage : combiné chaudière au fioul et PAC air/eau, cheminée à bois
- VISITE VIRTUELLE et pack 'photos supplémentaires' sur demande
.
Ne manquez pas cette opportunité rare d'acquérir un bien polyvalent dans un environnement charmant et proche des commodités.
Laissez libre cours à vos ambitions dans ce bien spacieux, avec son ambiance authentique et son emplacement stratégique, parfait pour développer une activité à vocation d'accueil ou de réception.
.
Je vous souhaite une bonne journée et à bientôt pour une visite !

- Annonce rédigée et publiée par un Agent Mandataire -
Voir plus

Référence: 25_DFVMA310000212
Honoraires à la charge du vendeur.
DPE
A
B
C
D
E
F
G
GES
A
B
C
D
E
F
G

Prêt immobilier

Vous souhaitez connaître votre capacité d’emprunt et trouver le meilleur crédit immobilier ?
Réaliser une simulation gratuite

Maison à MAUPREVOIR
Maison à MAUPREVOIR
Maison à MAUPREVOIR
Maison à MAUPREVOIR
Maison à MAUPREVOIR
Maison à MAUPREVOIR
Maison à MAUPREVOIR
Maison à MAUPREVOIR
Maison à MAUPREVOIR
Maison à MAUPREVOIR
Maison à MAUPREVOIR
Maison à MAUPREVOIR
Maison à MAUPREVOIR
Maison à MAUPREVOIR
Maison à MAUPREVOIR
Maison à MAUPREVOIR
Ce site est protégé par reCAPTCHA la Politique de confidentialité et les Conditions d’utilisation de Google s’appliquent.
Obtenir un prêt immobilier au meilleur taux ?

En poursuivant votre navigation sans modifier vos paramètres, vous acceptez l'utilisation de cookies susceptibles de réaliser des statistiques de visite. Cliquez ici pour plus d'informations