Bénéficiez des services de nos partenaires locaux soigneusement sélectionnés
pour vous accompagner dans votre parcours d'achat immobilier

Appartement rez de jardin

— Montagny 69700 —
333 000 €
63 m²
3 pièces
parkingbalcon/terrasse

Nos partenaires locaux
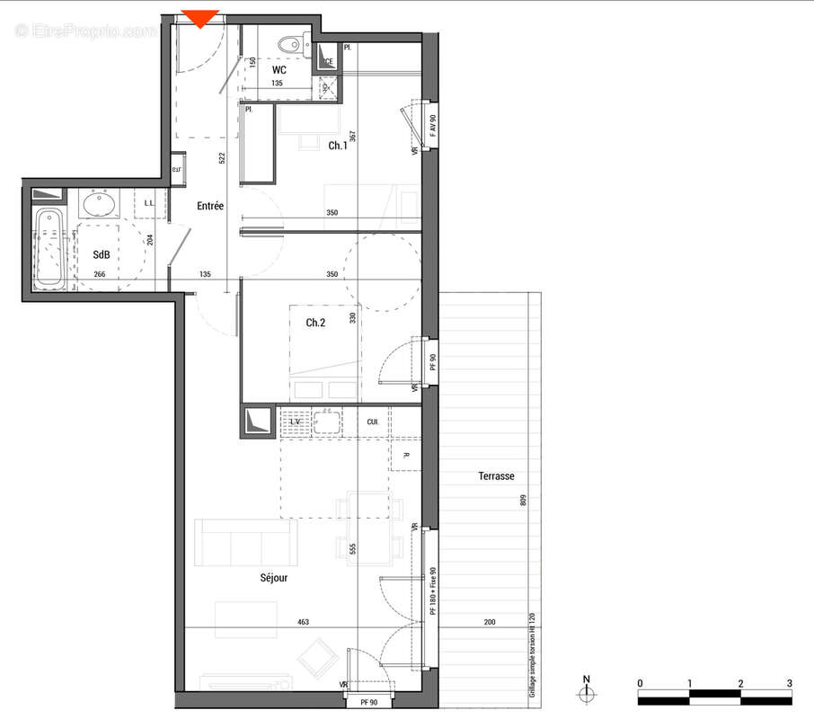
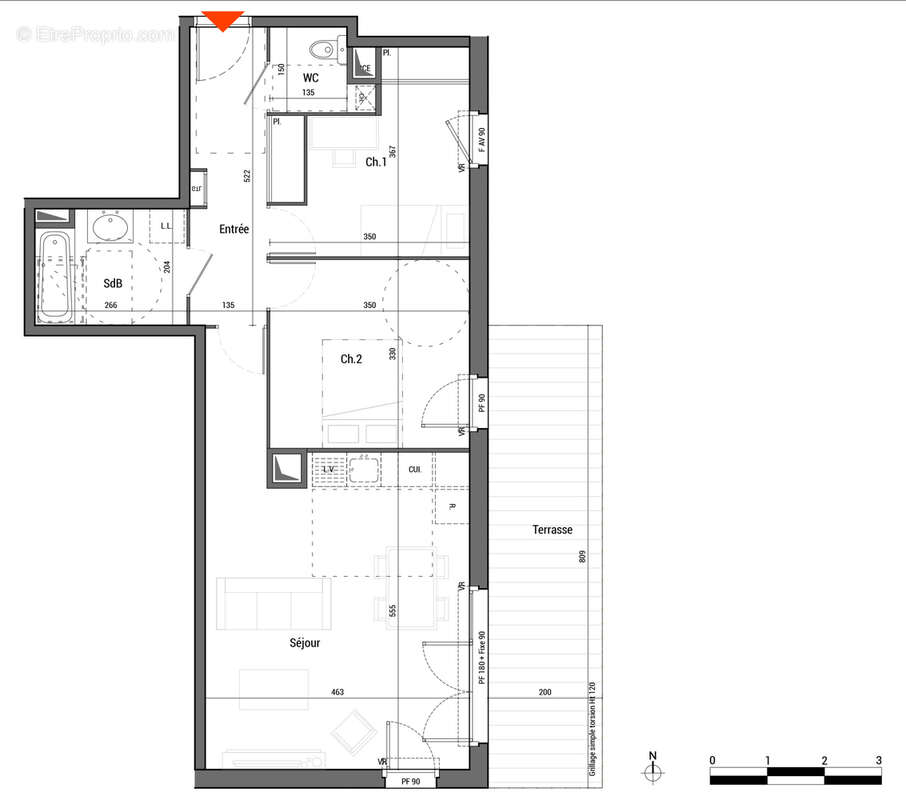
Montagny Coeur de Village, 6ème Sens Immobilier vous propose à la vente cet appartement de 63.45m2, à proximité immédiate des commodités au sein d'une résidence alliant charme et standing,offrant des prestations soignées et bénéficiant d'un emplacement exceptionnel qui combine, commodités, tranquillité, et authenticité.
Cet appartement se compose d'une entrée, d'un séjour de 27m2 ouvrant sur une terrasse de 16m2 , de 2 chambres et d'une salle de bains, 1wc.
En annexe un garage double.
Votre contact Véronique Pitiot-Cornut : [Coordonnées masquées]
DPE vierge . Honoraires charge vendeur
Voir plus

Référence: 1935
Bien en copropriété. Nombre de lots : 20.
Honoraires à la charge du vendeur.
Barème des honoraires

Prêt immobilier

Vous souhaitez connaître votre capacité d’emprunt et trouver le meilleur crédit immobilier ?
Réaliser une simulation gratuite

Appartement à MONTAGNY
Appartement à MONTAGNY
Ce site est protégé par reCAPTCHA la Politique de confidentialité et les Conditions d’utilisation de Google s’appliquent.
Obtenir un prêt immobilier au meilleur taux ?

En poursuivant votre navigation sans modifier vos paramètres, vous acceptez l'utilisation de cookies susceptibles de réaliser des statistiques de visite. Cliquez ici pour plus d'informations