Pavillon à 13 minutes de bagnoles de l'orne à finir de rénover

— Magny-Le-Desert 61600 —
60 990 €
92 m² / 722 m²
1 pièce

secteur Saint-Julien-Du-Terroux-Couterne
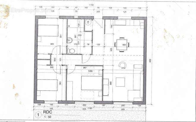
Un lotissement calme venez découvrir ce pavillon de plain-pied, en cours de construction, d'environ 92 m².

Vous souhaitez réaliser vos travaux d'intérieur ? Ce bien est fait pour vous !

Travaux déjà effectués : gros œuvre (dallage et murs en briques POROTHERM), charpente de type fermettes, couverture en tuiles, gouttières, menuiseries PVC et alu.

Travaux à prévoir : isolation, cloisons, électricité, plomberie, chauffage, ventilation, chape, carrelage, pose appareils sanitaires, cuisine et peintures.

Le tout sur un terrain d'environ 722m² avec un abri de jardin.

Cette annonce référence 257042 vous est présentée par votre agent commercial BSK Immobilier JESSICA SEGERS (EI) immatriculé au RSAC de COUTANCES (50200) sous le numéro 88911310600039.

Prix du bien : 60 990,00 €
Les honoraires d'agence sont à la charge du vendeur.

Non soumis au DPE.

Les informations sur les risques auxquels ce bien est exposé sont disponibles sur le site Géorisques : www.georisques.gouv.fr
Voir plus

Référence: 257042
Honoraires à la charge du vendeur.

Prêt immobilier

Vous souhaitez connaître votre capacité d’emprunt et trouver le meilleur crédit immobilier ?
Réaliser une simulation gratuite

Maison à MAGNY-LE-DESERT
Maison à MAGNY-LE-DESERT
Maison à MAGNY-LE-DESERT
Ce site est protégé par reCAPTCHA la Politique de confidentialité et les Conditions d’utilisation de Google s’appliquent.
Obtenir un prêt immobilier au meilleur taux ?

En poursuivant votre navigation sans modifier vos paramètres, vous acceptez l'utilisation de cookies susceptibles de réaliser des statistiques de visite. Cliquez ici pour plus d'informations