Bénéficiez des services de nos partenaires locaux soigneusement sélectionnés
pour vous accompagner dans votre parcours d'achat immobilier

Maison duplex mitoyenne par le garage

— Toussieu 69780 —
409 000 €
86 m² / 222 m²
4 pièces
parkingjardin

Nos partenaires locaux
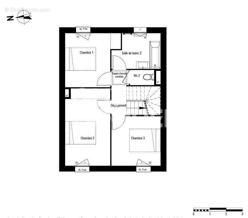
GUY HOQUET SAINT JUST CHALEYSSIN vous propose au sein d'un nouvel ensemble de maisons et d'appartements sur le secteur de TOUSSIEU, cette villa duplex de 88 m² avec son jardin de plus de 200 m² et son garage. Vous apprécierez son jardin plat et sa terrasse. Elle est composée au RDC d'une pièce de vie d'environ 37 m², d'une salle de bains et toilettes et à l'étage, de trois chambres, d'une deuxième salle de bains et WC. Chauffage individuel gaz de ville. Place de parking devant le garage. Zone B1 éligible au prêt à taux zéro (pour les primo accédants et les non propriétaires de leur résidence principale depuis plus de deux ans). Contactez nous pour plus de renseignements Copropriété de 100 lots (Pas de procédure en cours).
Voir plus

Référence: 335
Bien en copropriété. Nombre de lots : 100.
Honoraires à la charge du vendeur.
Barème des honoraires

Prêt immobilier

Vous souhaitez connaître votre capacité d’emprunt et trouver le meilleur crédit immobilier ?
Réaliser une simulation gratuite

Maison à TOUSSIEU
Maison à TOUSSIEU
Maison à TOUSSIEU
Maison à TOUSSIEU
Maison à TOUSSIEU
Maison à TOUSSIEU
Ce site est protégé par reCAPTCHA la Politique de confidentialité et les Conditions d’utilisation de Google s’appliquent.
Obtenir un prêt immobilier au meilleur taux ?

En poursuivant votre navigation sans modifier vos paramètres, vous acceptez l'utilisation de cookies susceptibles de réaliser des statistiques de visite. Cliquez ici pour plus d'informations