Bénéficiez des services de nos partenaires locaux soigneusement sélectionnés
pour vous accompagner dans votre parcours d'achat immobilier

Villa de charme au tignet avec piscine et son confort moderne!

— Le Tignet 06530 —
840 000 €
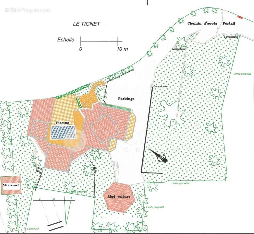
195 m² / 2 179 m²
10 pièces
parkingjardinpiscine

Nos partenaires locaux
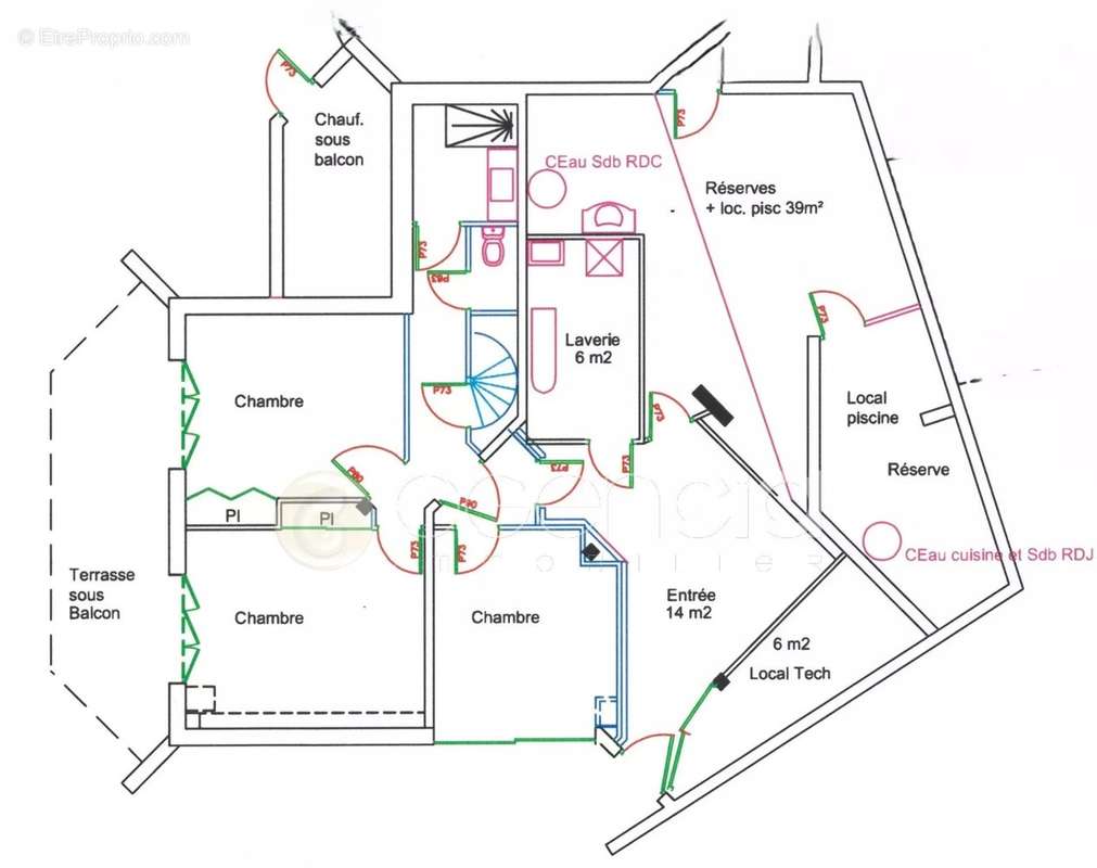
Située au TIGNET à 5 minutes de toutes les commodités, sa position dominante nous offre une vue panoramique sur les collines et la campagne! Découvrez cette belle villa d'Architecte unique et atypique de 195 m² habitable où les propriétaires ont réussi à créer une atmosphère paisible et intimiste! Villa aux volumes généreux : hall d'entrée ouvrant sur un spacieux séjour ensoleillé et lumineux avec salle à manger, salon poêle à bois, cuisine récente équipée, 5 belles chambres,2 salles de douches et 2 toilettes. Buanderie, grande cave et annexes. Surplombant le séjour, une grande mezzanine/salon TV qui donne sur une salle de jeux/bureau.
Autour de sa grande terrasse/patio, vous invite à la détente avec sa piscine chauffée et sa cuisine d'été équipée ! 2 grandes chambres indépendantes, salle de bains et toilettes.
Côté jardin, un authentique Mazet en pierre entièrement rénové ! Terrain clôturé et agréablement aménagé d'une surface de 2179 m²,un abri voiture de 38 m². Portail automatique. La villa est dotée de caractéristiques modernes telles que la climatisation, un poêle à bois et des fenêtres en PVC avec double vitrage, garantissant un confort optimal toute l'année. Cette villa allie parfaitement esthétique et fonctionnalité, prête à vous offrir un cadre de vie exceptionnel ,idéale pour une grande famille, chambres d hôtes ou 2 logements!
http://georisques.gouv.fr.
Voir plus

Référence: 594901
DPE
A
B
C
D
E
F
G
GES
A
B
C
D
E
F
G

Prêt immobilier

Vous souhaitez connaître votre capacité d’emprunt et trouver le meilleur crédit immobilier ?
Réaliser une simulation gratuite

Maison à LE TIGNET
Maison à LE TIGNET
Maison à LE TIGNET
Maison à LE TIGNET
Maison à LE TIGNET
Maison à LE TIGNET
Maison à LE TIGNET
Maison à LE TIGNET
Maison à LE TIGNET
Maison à LE TIGNET
Maison à LE TIGNET
Maison à LE TIGNET
Maison à LE TIGNET
Maison à LE TIGNET
Maison à LE TIGNET
Maison à LE TIGNET
Maison à LE TIGNET
Maison à LE TIGNET
Maison à LE TIGNET
Maison à LE TIGNET
Maison à LE TIGNET
Maison à LE TIGNET
Maison à LE TIGNET
Maison à LE TIGNET
Maison à LE TIGNET
Maison à LE TIGNET
Maison à LE TIGNET
Maison à LE TIGNET
Maison à LE TIGNET
Maison à LE TIGNET
Maison à LE TIGNET
Maison à LE TIGNET
Maison à LE TIGNET
Maison à LE TIGNET
Maison à LE TIGNET
Maison à LE TIGNET
Maison à LE TIGNET
Maison à LE TIGNET
Maison à LE TIGNET
Maison à LE TIGNET
Maison à LE TIGNET
Maison à LE TIGNET
Ce site est protégé par reCAPTCHA la Politique de confidentialité et les Conditions d’utilisation de Google s’appliquent.
Obtenir un prêt immobilier au meilleur taux ?

En poursuivant votre navigation sans modifier vos paramètres, vous acceptez l'utilisation de cookies susceptibles de réaliser des statistiques de visite. Cliquez ici pour plus d'informations