Parking 99m² à evaux-les-bains

— Evaux-Les-Bains 23110 —
29 000 €
99 m² / 99 m²

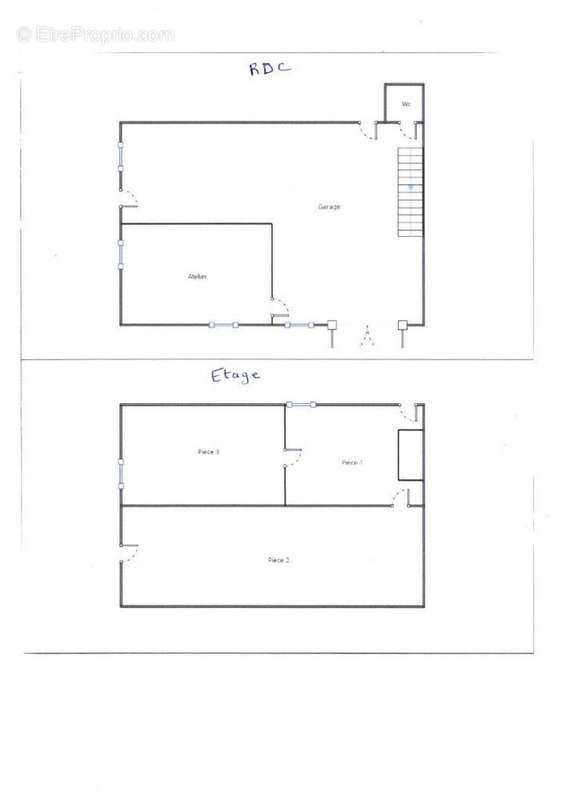
Iad France - Regis Boursaud vous propose : Garage à vendre de 99 m² - Idéal pour Stationner en Toute Sérénité ou d'autres projets.
À l'étage, vous avez la possibilité d'aménager des pièces.
Situé à Evaux-Les-Bains, ce garage en excellent état est l'opportunité parfaite pour sécuriser votre véhicule ou entreposer vos affaires en toute tranquillité.
Ce garage vous offre un espace spacieux pour garer votre véhicule, vos vélos, ou encore stocker des affaires supplémentaires. Son emplacement central vous permet un accès facile et rapide à vos biens en tout temps, sans tracas.
La façade et la toiture sont en très bonnes états.
Situé dans un quartier calme, vous pourrez profiter d'une sécurité optimale pour votre véhicule ou vos biens entreposés. Avec un accès privé, vous disposerez d'une intimité appréciable. De plus, la proximité des commerces, des écoles et des services facilite votre quotidien.
Vous avez un projet pour cet espace, n'hésitez à me contacter pour planifier une visite.

Honoraires d'agence à la charge du vendeur.
Bien non soumis au DPE. Les informations sur les risques auxquels ce bien est exposé, y compris l'obligation légale de débroussaillement, sont disponibles sur le site Géorisques : www.georisques.gouv.fr.
La présente annonce immobilière a été rédigée sous la responsabilité éditoriale de M Regis Boursaud mandataire indépendant en immobilier (sans détention de fonds), agent commercial de la SAS I@D France immatriculé au RSAC de GUERET sous le numéro 850519703, titulaire de la carte de démarchage immobilier pour le compte de la société I@D France SAS.
Informations LOI ALUR :
Honoraires charge vendeur. (gedeon_6727_30145649)
Voir plus

Référence: 1628041
Honoraires à la charge du vendeur.

Prêt immobilier

Vous souhaitez connaître votre capacité d’emprunt et trouver le meilleur crédit immobilier ?
Réaliser une simulation gratuite

Photo 1 - Parking à EVAUX-LES-BAINS
Photo 1
Photo 2 - Parking à EVAUX-LES-BAINS
Photo 2
Photo 3 - Parking à EVAUX-LES-BAINS
Photo 3
Photo 4 - Parking à EVAUX-LES-BAINS
Photo 4
Photo 5 - Parking à EVAUX-LES-BAINS
Photo 5
Photo 6 - Parking à EVAUX-LES-BAINS
Photo 6
Photo 7 - Parking à EVAUX-LES-BAINS
Photo 7
Photo 8 - Parking à EVAUX-LES-BAINS
Photo 8
Ce site est protégé par reCAPTCHA la Politique de confidentialité et les Conditions d’utilisation de Google s’appliquent.
Obtenir un prêt immobilier au meilleur taux ?

En poursuivant votre navigation sans modifier vos paramètres, vous acceptez l'utilisation de cookies susceptibles de réaliser des statistiques de visite. Cliquez ici pour plus d'informations