Longère sans vis-à-vis de 145m² proche cepoy

— Nargis 45210 —
189 000 €
147 m² / 430 m²
7 pièces
parkingbalcon/terrasse

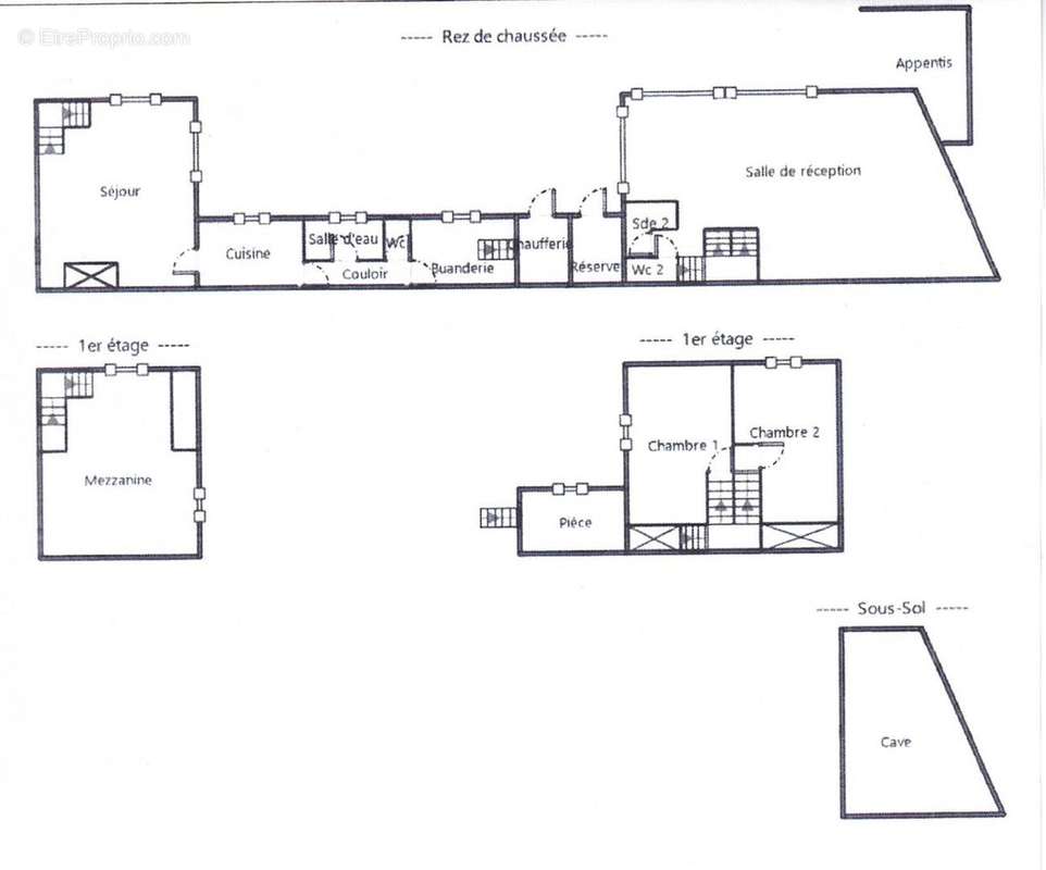
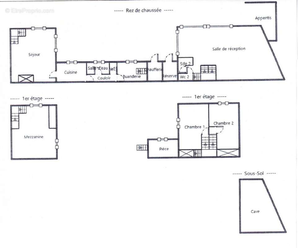
NARGIS (45210) au sud de la Seine et Marne (77), à moins d'1h30 de Paris, 9kms de CHÂTEAU-LANDON (77) et 7kms de FERRIÈRES-EN-GÂTINAIS (45) et de CEPOY (45) et de ses commerces, je vous propose cette belle longère à l'agencement atypique d'une superficie habitable totale d'environ 145m². CHARME de l'ancien et AUTHENTICITÉ pour ce bien situé dans un environnement calme et reposant. ENVIE d'investir dans la LOCATION saisonnière ?! C'est le bien IDÉAL car il se compose de deux espaces distincts bénéficiant chacun de toutes les commodités. Grand salon avec cheminée, salle de réception de plus de 60m² avec poêle à bois, plafond cathédrale et kitchenette équipée, cuisine moderne équipée, deux salles de douche et deux wc indépendants, 3 chambres avec poutres apparentes, buanderie et cave. Chauffage au bois et chaudière fioul. Assainissement individuel CONFORME (micro station installée en 2020). BONUS : une pièce supplémentaire à finir d'aménager pour une future salle de jeux, un bureau ou une 4ème chambre, selon vos besoins. SES ATOUTS : Menuiseries et huisseries en pvc double vitrage, micro-station NEUVE, toiture en parfait état, puit fonctionnel, ravalement récent, AUCUN VIS à VIS, voisinage discret, chemins de promenades à proximité !! Possibilité de réunir les deux habitations ! Le tout sur un joli terrain entièrement clos de 430m² avec cabanon et appentis. PEU d'ENTRETIEN !! Gare de Ferrières/Fontenay (TER ligne R Paris Gare de Lyon) à 5 kms. Gare de Souppes sur Loing (Pass' Navigo) à 12 kms. A77 --> A6 à 12 kms et A19 à 8 kms. NE TARDEZ PAS À VENIR LA VISITER !! Visite virtuelle sur demande. « Les informations sur les risques auxquels ce bien est exposé sont disponibles sur le site Géorisques : https://www.georisques.gouv.fr/ » Contactez Elisabeth DA SILVA VENDEIRO, Agence de CEPOY au [Coordonnées masquées], AXO - L'immobilier Actif, Agent Commercial RSAC 852.608.173 Orléans. Plus d'informations sur www.axo.immo (réf. 85002101594) et [Coordonnées masquées]. Honoraires charge vendeur #LONGERE #ATYPIQUE #CAMPAGNE #IMMOBILIERANCIEN #MAISONAVENDRE #NARGIS #FERRIERESENGATINAIS #CHATEAULANDON #45210 #SUDSEINEETMARNE #CHARME #AUTHENTICITE #POUTRES #PIERREAPPARENTE #SANSVISAVIS #INVESTISSEUR #LOCATIONSAISONNIERE #AIRBNB
Voir plus

Référence: 28728
Honoraires à la charge du vendeur.
Barème des honoraires
DPE
A
B
C
D
E
F
G
GES
A
B
C
D
E
F
G

Prêt immobilier

Vous souhaitez connaître votre capacité d’emprunt et trouver le meilleur crédit immobilier ?
Réaliser une simulation gratuite

Maison à NARGIS
Maison à NARGIS
Maison à NARGIS
Maison à NARGIS
Maison à NARGIS
Maison à NARGIS
Maison à NARGIS
Maison à NARGIS
Maison à NARGIS
Maison à NARGIS
Maison à NARGIS
Maison à NARGIS
Maison à NARGIS
Maison à NARGIS
Maison à NARGIS
Maison à NARGIS
Maison à NARGIS
Ce site est protégé par reCAPTCHA la Politique de confidentialité et les Conditions d’utilisation de Google s’appliquent.
Obtenir un prêt immobilier au meilleur taux ?

En poursuivant votre navigation sans modifier vos paramètres, vous acceptez l'utilisation de cookies susceptibles de réaliser des statistiques de visite. Cliquez ici pour plus d'informations