Maison 187m² à rennes

— Rennes 35700 —
1 177 700 €
187 m²
6 pièces

Iad France - Rozenn Heslan ([Coordonnées masquées]) vous propose : Petit lotissement de 6 maisons d'architectes en perspectives.
L'architecture se voudra contemporaine avec un choix de matériaux de qualité.

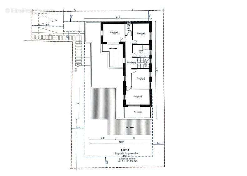
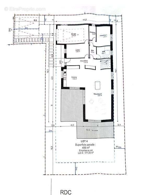
Cette maison se construira sur un terrain de 500 m² environ exposition traversante avec 2 terrasses au rez-de-chaussée exposée sud-est et sud-ouest ainsi qu'une terrasse à l'étage attenante à une belle chambre.
Superficie total de 210 m² environ, encore une possibilité d'effectuer quelques changements en plan intérieur

Emplacement idéal à la sortie de Cesson Sévigné à 200m de Rennes et ses transports en commun.
Une localisation idéale par sa proximité avec les écoles, les commerces, la rocade, les transports et équipements sportifs et culturels tout en restant au calme d'une impasse pour plus de sérénité et d'intimité.

Honoraires d'agence à la charge du vendeur. Bien non soumis au DPE. Les informations sur les risques auxquels ce bien est exposé sont disponibles sur le site Géorisques : www.georisques.gouv.fr. La présente annonce immobilière a été rédigée sous la responsabilité éditoriale de Mlle Rozenn Heslan EI (ID 48704), mandataire indépendant en immobilier (sans détention de fonds), agent commercial de la SAS I@D France immatriculé au RSAC de RENNES sous le numéro 888437563, titulaire de la carte de démarchage immobilier pour le compte de la société I@D France SAS.
Retrouvez tous nos biens sur notre site internet. www.iadfrance.fr.
Informations LOI ALUR :
Honoraires charge vendeur. (gedeon_6727_30161312)
Voir plus

Référence: 1485262-4
Honoraires à la charge du vendeur.

Prêt immobilier

Vous souhaitez connaître votre capacité d’emprunt et trouver le meilleur crédit immobilier ?
Réaliser une simulation gratuite

Photo 1 - Maison à RENNES
Photo 1
Photo 2 - Maison à RENNES
Photo 2
Photo 3 - Maison à RENNES
Photo 3
Photo 4 - Maison à RENNES
Photo 4
Photo 5 - Maison à RENNES
Photo 5
Photo 6 - Maison à RENNES
Photo 6
Photo 7 - Maison à RENNES
Photo 7
Photo 8 - Maison à RENNES
Photo 8
Photo 9 - Maison à RENNES
Photo 9
Ce site est protégé par reCAPTCHA la Politique de confidentialité et les Conditions d’utilisation de Google s’appliquent.
Obtenir un prêt immobilier au meilleur taux ?

En poursuivant votre navigation sans modifier vos paramètres, vous acceptez l'utilisation de cookies susceptibles de réaliser des statistiques de visite. Cliquez ici pour plus d'informations