A vendre murs et fond hôtel / appart hotel

— Peone 06470 —
2 290 000 €
1 352 m²

Dans un cadre idéal et situé plein sud au pied des pistes,
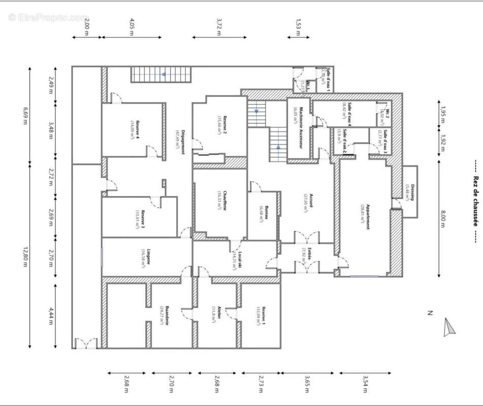
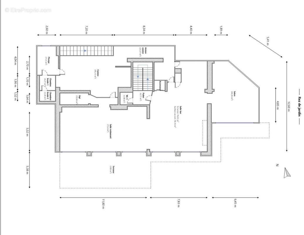
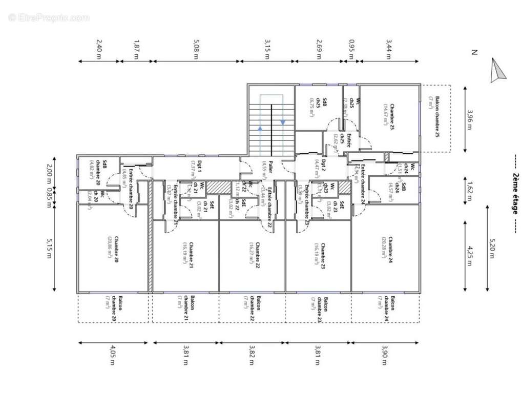
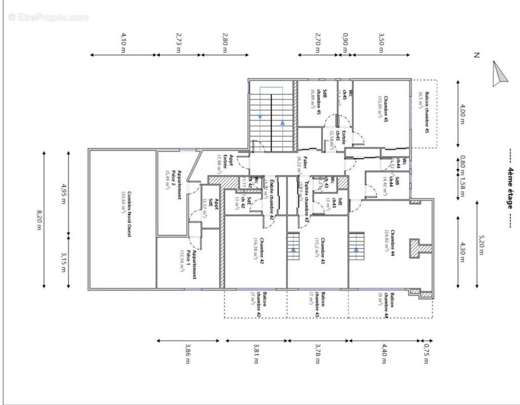
Bâtiment de type R+5 de 1 351.85 m² carrez et 1 770.27 m² de surface totale + combles non aménagées.
Comprenant 20 chambres spacieuses avec terrasses, 2 studios personnel et un logement de type 2 pièces personnel , salle de fitness, une salle de bar-restaurant avec terrasse de plus de 100 m², vue panoramique sur les pistes.
feu de cheminée, local ski, buanderie, chaufferie, ascenseur, Sauna..

En hiver à VALBERG
A 1h15 du littoral méditerranéen, la station de Valberg, située dans un écrin de mélèzes, est la station de ski plaisir. Petits et grands peuvent s´y adonner aux joies de la neige.
Au programme pour les amateurs de glisse : 90 km de ski alpin, snowpark, Family Park, 25 km de ski de fond et de nombreux sentiers raquettes ou pédestres sur neige.
D'autres activités, telles que la piscine couverte et chauffée ou la motoneige, permettent de varier les plaisirs. Spécialement pour les enfants, le club Piou-Piou, l'un des plus beaux des Alpes, les attend dans l'environnement préservé du Parc des Oursons.
Vous préférez le calme ? La médiathèque et les balades en raquettes sont à votre disposition.
En été à VALBERG
A 1h15 du littoral méditerranéen, la station de Valberg, située dans un écrin de mélézin, est un paradis pour petits et grands . Sportifs, vous pourrez vous adonner à une multitude d´activités : randonnées pédestres, équitation, VTT rando et pistes d'Enduro, Bike Park, tennis, piscine, parc de loisirs, luge d'été, escalade et pour les plus téméraires, l´Espace Valberg Aventure. Le Valberg Golf Club vous accueille avec son parcours 9 trous et son practice. Les enfants et ados profiteront du Skate Park juste à côté du City Stade. Les amateurs de calme et de fraîcheur seront comblés par l´ambiance chaleureuse d´une station-village, et ses environs verdoyants. Promenades, pêche, expositions, événements culturels...Valberg, c'est la station plaisir, pour tous.
Voir plus

Référence: 85129105
DPE
A
B
C
D
E
F
G
GES
A
B
C
D
E
F
G

Prêt immobilier

Vous souhaitez connaître votre capacité d’emprunt et trouver le meilleur crédit immobilier ?
Réaliser une simulation gratuite

Appartement à PEONE
Appartement à PEONE
Appartement à PEONE
Appartement à PEONE
Appartement à PEONE
Appartement à PEONE
Appartement à PEONE
Appartement à PEONE
Appartement à PEONE
Appartement à PEONE
Ce site est protégé par reCAPTCHA la Politique de confidentialité et les Conditions d’utilisation de Google s’appliquent.
Obtenir un prêt immobilier au meilleur taux ?

En poursuivant votre navigation sans modifier vos paramètres, vous acceptez l'utilisation de cookies susceptibles de réaliser des statistiques de visite. Cliquez ici pour plus d'informations