Bénéficiez des services de nos partenaires locaux soigneusement sélectionnés
pour vous accompagner dans votre parcours d'achat immobilier

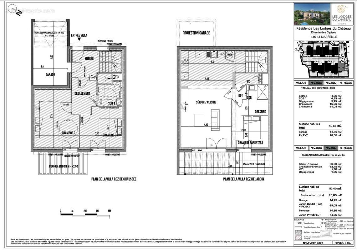
Maison 4 pièces - jardin

— Marseille-13e 13013 —
469 000 €
95 m² / 245 m²
4 pièces
jardin

Nos partenaires locaux
Vivez au cœur du 13ème arrondissement.

Découvrez cette belle maison de type 4 d'environ 95,6 m2 dans une résidence de seulement 9 maisons.

Vous profiterez des avantages des constructions neuves.

Le rez-de-chaussée comprend un vaste séjour-cuisine lumineux, une suite parentale équipée d'une salle d'eau et toilettes. A l'étage deux chambres spacieuses, une seconde salle de bain et des toilettes offrent un confort optimal pour toute la famille.

Vous pourrez profiter d'un jardin de 74 m2 devant le séjour.

Un garage et un parking extérieur complètent la maison.
Livraison : Mars 2025
Voir plus

Référence: 85429496
Barème des honoraires
DPE
A
B
C
D
E
F
G
GES
A
B
C
D
E
F
G

Prêt immobilier

Vous souhaitez connaître votre capacité d’emprunt et trouver le meilleur crédit immobilier ?
Réaliser une simulation gratuite

Maison à MARSEILLE-13E
Maison à MARSEILLE-13E
Maison à MARSEILLE-13E
Maison à MARSEILLE-13E
Ce site est protégé par reCAPTCHA la Politique de confidentialité et les Conditions d’utilisation de Google s’appliquent.
Obtenir un prêt immobilier au meilleur taux ?

En poursuivant votre navigation sans modifier vos paramètres, vous acceptez l'utilisation de cookies susceptibles de réaliser des statistiques de visite. Cliquez ici pour plus d'informations