Bénéficiez des services de nos partenaires locaux soigneusement sélectionnés
pour vous accompagner dans votre parcours d'achat immobilier

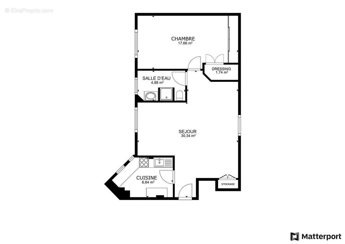
Appartement 60m² à paris 18e arrondissement

— Paris-18e 75018 —
480 000 €
61 m²
2 pièces

Nos partenaires locaux
ERA GUY MOQUET vous propose au pied du métro GUY MOQUET PARIS 17EME/ 18EME de ses commerces, proche du palais de justice et de la future ligne 14.
Dans un immeuble ART DECO avec gardien a demeure.
Vous serez charmer par ce de 2/3 pièces de 61.26m2, au 2ème étage par l' ASCENSEUR comprenant une entrée donnant sur une pièce principale de 30m2, une chambre, une cuisine séparée aménagée et équipée, une salle d'eau avec WC . De nombreux rangements, une cave complète ce bien.
Aucun travaux sont à prévoir, beau potentiel, calme absolu dans un quartier jeune et vivant.
A visiter rapidement
48, Rue Guy Môquet 75017 Paris
[Coordonnées masquées] / [Coordonnées masquées]
L'Etat des Risques et Pollution peut être consulté sur https://www.georisques.gouv.fr
Voir plus

Référence: 4072
DPE
A
B
C
D
E
F
G
GES
A
B
C
D
E
F
G

Prêt immobilier

Vous souhaitez connaître votre capacité d’emprunt et trouver le meilleur crédit immobilier ?
Réaliser une simulation gratuite

Appartement à PARIS-18E
Appartement à PARIS-18E
Appartement à PARIS-18E
Appartement à PARIS-18E
Appartement à PARIS-18E
Appartement à PARIS-18E
Appartement à PARIS-18E
Appartement à PARIS-18E
Appartement à PARIS-18E
Appartement à PARIS-18E
Appartement à PARIS-18E
Appartement à PARIS-18E
Appartement à PARIS-18E
Appartement à PARIS-18E
Ce site est protégé par reCAPTCHA la Politique de confidentialité et les Conditions d’utilisation de Google s’appliquent.
Obtenir un prêt immobilier au meilleur taux ?

En poursuivant votre navigation sans modifier vos paramètres, vous acceptez l'utilisation de cookies susceptibles de réaliser des statistiques de visite. Cliquez ici pour plus d'informations