Appartement 85m² à pleneuf-val-andre

— Pleneuf-Val-Andre 22370 —
775 000 €
85 m²
4 pièces
parkingbalcon/terrasseascenseur

Iad France - Nathalie ANQUET ([Coordonnées masquées]) vous propose : Appartement T4 de Standing au COEur de Pléneuf-Val-André

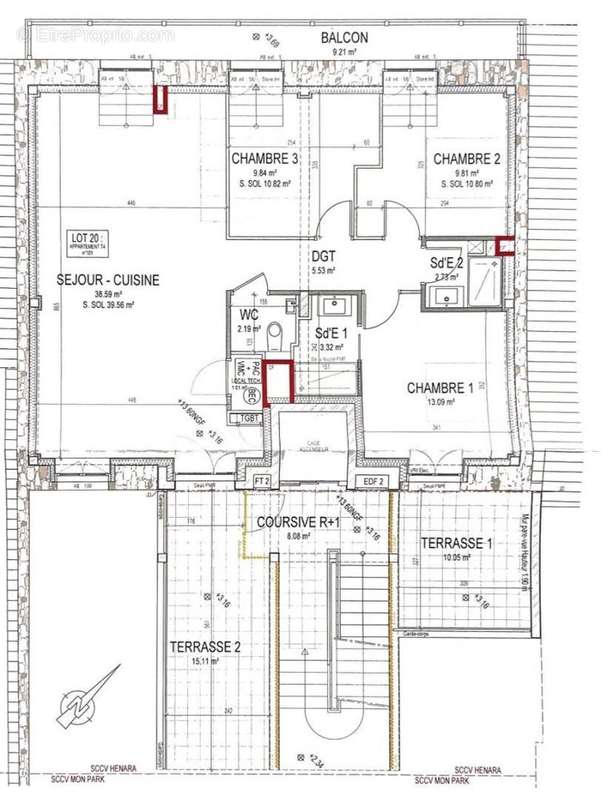
Situé au 1er étage d'une résidence de standing avec ascenseur, cet appartement T4 bénéficie d'un emplacement privilégié en plein centre de Pléneuf-Val-André. À seulement quelques pas de la plage et des commerces, il offre un cadre de vie exceptionnel pour profiter pleinement de la vie côtière.

Caractéristiques principales :
oType : T4 avec des espaces lumineux et bien agencés.
oEmplacement : En plein centre du Val-André, à proximité immédiate de la plage et des commodités.
oExtérieur : Terrasse privative, parfaite pour des moments de détente.
oParking : Place de parking incluse, assurant un stationnement pratique et sécurisé.
Chauffage : pompe à chaleur
Normes RE 2020
Disposition :
Cet appartement comprend un vaste séjour, une cuisine ouverte, trois chambres confortables, dont une suite parentale,
2 salles d'eau. Chauffage pompe à chaleur, normes RE 2020

Idéal pour une résidence principale, un pied-à-terre ou un investissement locatif, cet appartement allie confort et praticité dans un cadre recherché. disponible décembre 2025

Pour plus d'informations contactez-moi dès aujourd'hui et laissez-vous séduire par la vie en bord de mer !

Honoraires d'agence à la charge du vendeur. Bien non soumis au DPE. Les informations sur les risques auxquels ce bien est exposé sont disponibles sur le site Géorisques : www.georisques.gouv.fr. La présente annonce immobilière a été rédigée sous la responsabilité éditoriale de Mme Nathalie ANQUET EI (ID 42660), mandataire indépendant en immobilier (sans détention de fonds), agent commercial de la SAS I@D France immatriculé au RSAC de SAINT BRIEUC sous le numéro 413164591, titulaire de la carte de démarchage immobilier pour le compte de la société I@D France SAS.
Retrouvez tous nos biens sur notre site internet. www.iadfrance.fr.
Informations LOI ALUR :
Honoraires charge vendeur. (gedeon_6727_30177529)
Voir plus

Référence: 1641979-1
Honoraires à la charge du vendeur.

Prêt immobilier

Vous souhaitez connaître votre capacité d’emprunt et trouver le meilleur crédit immobilier ?
Réaliser une simulation gratuite

Photo 1 - Appartement à PLENEUF-VAL-ANDRE
Photo 1
Photo 2 - Appartement à PLENEUF-VAL-ANDRE
Photo 2
Photo 3 - Appartement à PLENEUF-VAL-ANDRE
Photo 3
Photo 4 - Appartement à PLENEUF-VAL-ANDRE
Photo 4
Photo 5 - Appartement à PLENEUF-VAL-ANDRE
Photo 5
Photo 6 - Appartement à PLENEUF-VAL-ANDRE
Photo 6
Ce site est protégé par reCAPTCHA la Politique de confidentialité et les Conditions d’utilisation de Google s’appliquent.
Obtenir un prêt immobilier au meilleur taux ?

En poursuivant votre navigation sans modifier vos paramètres, vous acceptez l'utilisation de cookies susceptibles de réaliser des statistiques de visite. Cliquez ici pour plus d'informations