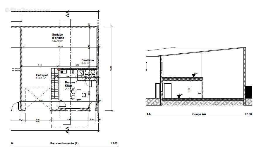
Commerce 100m² à villemur-sur-tarn

— Villemur-Sur-Tarn 31340 —
162 500 €
100 m²

Iad France - Clément Luppino ([Coordonnées masquées]) vous propose : * EXCLUSIVITE * Dans la Zone d'Activité de PECHNAUQUIE II, 1 rue Passo Corese, 31340 Villemur-sur-Tarn.

Description :

Vous recherchez un espace commercial polyvalent qui offre une flexibilité maximale pour réaliser votre projet commercial ? Ne cherchez pas plus loin ! Nous sommes ravis de présenter ce hangar commercial spacieux et modulable, parfaitement adapté à une gamme diversifiée d'activités commerciales.

Caractéristiques principales :

Surface généreuse : Le hangar offre une vaste superficie pour répondre à tous vos besoins commerciaux.

Modularité :

L'espace peut être acquis soit nu, soit aménagé selon vos désires. Que vous envisagiez un entrepôt, un atelier, un espace de fabrication ou tout autre usage commercial, ce hangar peut être aménagé pour répondre à vos besoins spécifiques.

Emplacement stratégique :

Situé dans une Zone d'Activité dynamique et en pleine expansion, ce hangar bénéficie d'une visibilité exceptionnelle et d'un accès facile aux principales voies de circulation et aux infrastructures locales. En effet, le hangar se situe au milieu du triangle TOULOUSE, MONTAUBAN, GAILLAC.

Possibilités infinies :

L'emplacement polyvalent de ce hangar offre un large éventail de possibilités commerciales, que ce soit pour le commerce de détail, la logistique, la distribution, la fabrication ou d'autres activités commerciales.

Le prix du bien s'adapte selon vos besoins de configuration. N'hésitez pas à me contacter pour affiner votre projet!

mandat 150 5631-1 - Clément LUPPINO, conseiller immobilier disponible 7J / 7

Le bien associé à cette annonce est non soumis au DPE. Les informations sur les risques auxquels ce bien est exposé sont disponibles sur le site Géorisques : www.georisques.gouv.fr. La présente annonce immobilière a été rédigée sous la responsabilité éditoriale de M. Clément Luppino EI (ID 81664), mandataire indépendant en immobilier (sans détention de fonds), agent commercial de la SAS I@D France immatriculé au RSAC de TOULOUSE sous le numéro 984685016, titulaire de la carte de démarchage immobilier pour le compte de la société I@D France SAS.
Retrouvez tous nos biens sur notre site internet. www.iadfrance.fr.
Informations LOI ALUR :
Honoraires charge vendeur. (gedeon_6727_28880340)
Voir plus

Référence: 1505631-1
Honoraires à la charge du vendeur.

Prêt immobilier

Vous souhaitez connaître votre capacité d’emprunt et trouver le meilleur crédit immobilier ?
Réaliser une simulation gratuite

Photo 1 - Commerce à VILLEMUR-SUR-TARN
Photo 1
Photo 2 - Commerce à VILLEMUR-SUR-TARN
Photo 2
Photo 3 - Commerce à VILLEMUR-SUR-TARN
Photo 3
Photo 4 - Commerce à VILLEMUR-SUR-TARN
Photo 4
Photo 5 - Commerce à VILLEMUR-SUR-TARN
Photo 5
Photo 6 - Commerce à VILLEMUR-SUR-TARN
Photo 6
Ce site est protégé par reCAPTCHA la Politique de confidentialité et les Conditions d’utilisation de Google s’appliquent.
Obtenir un prêt immobilier au meilleur taux ?

En poursuivant votre navigation sans modifier vos paramètres, vous acceptez l'utilisation de cookies susceptibles de réaliser des statistiques de visite. Cliquez ici pour plus d'informations