Bénéficiez des services de nos partenaires locaux soigneusement sélectionnés
pour vous accompagner dans votre parcours d'achat immobilier

Terrain constructible viabilisé - amberieux en dombes

— Amberieux-En-Dombes 01330 —
249 500 €
347 m²

Nos partenaires locaux
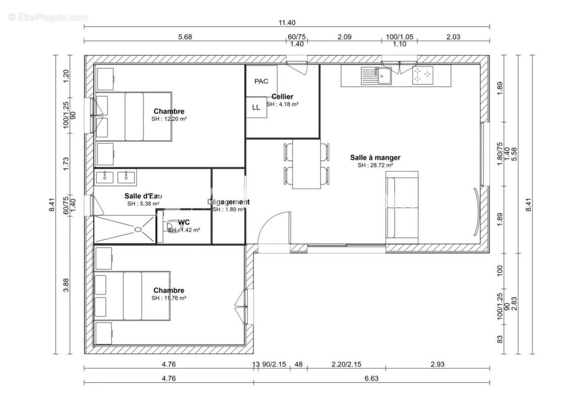
Dans le cœur du village d'Ambérieux en Dombes, nous vous proposons une suggestion de projet pour la construction d'une maison T3 de plain-pied avec carport, sur un terrain plat viabilisé de 347 m².

Ce projet est modulable selon les besoins des acquéreurs.

Référence: 85442045
Barème des honoraires

Prêt immobilier

Vous souhaitez connaître votre capacité d’emprunt et trouver le meilleur crédit immobilier ?
Réaliser une simulation gratuite

Terrain à AMBERIEUX-EN-DOMBES
Terrain à AMBERIEUX-EN-DOMBES
Terrain à AMBERIEUX-EN-DOMBES
Terrain à AMBERIEUX-EN-DOMBES
Terrain à AMBERIEUX-EN-DOMBES
Ce site est protégé par reCAPTCHA la Politique de confidentialité et les Conditions d’utilisation de Google s’appliquent.
Obtenir un prêt immobilier au meilleur taux ?

En poursuivant votre navigation sans modifier vos paramètres, vous acceptez l'utilisation de cookies susceptibles de réaliser des statistiques de visite. Cliquez ici pour plus d'informations