Bénéficiez des services de nos partenaires locaux soigneusement sélectionnés
pour vous accompagner dans votre parcours d'achat immobilier

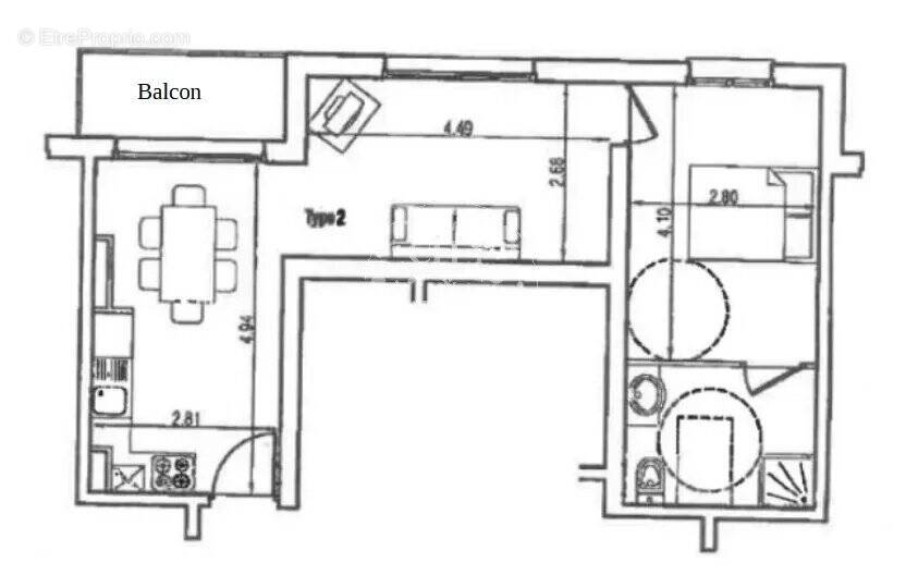
À 300m de la plage - t2 avec balcon et parking

— Le Touquet-Paris-Plage 62520 —
360 000 €
43 m²
2 pièces
balcon/terrasseascenseuraccès handicapé

Nos partenaires locaux
A 300M de la plage, dans une résidence de standing avec ascenseur, appartement T2 de 43,08m² avec balcon et parking (en option) et comprenant :

- Une cuisine meublée et équipée (plaque vitrocéramique, hotte aspirante, réfrigérateur, lave-vaisselle), avec espace repas (13.88m²) disposant d'une baie coulissante permettant l'accès à un balcon de 4m2 avec vue dégagée,
- Un salon de (11.91m²) avec baie coulissante,
Un couloir desservant :
- Une chambre de (11.49m²)
- Une salle de bains (douche à l'italienne, meuble vasque, wc) 5.80m².

Le + :
- Une cave en sous-sol,
- Garage vélos, râtelier vélos sur l'arrière de la résidence
- Aucune procédure en cours

Un emplacement de parking aérien PMR en option à 25.000€

À VISITER SANS TARDER !

Biens soumis au statuts de copropriété :
Nb de lots principaux : 16
Charges de copropriété : 804 €/an

Les informations sur les risques auxquels ce bien est exposé sont disponibles sur le site Géorisques : www.georisques.gouv.fr
Voir plus

Référence: 83015097
Barème des honoraires
DPE
A
B
C
D
E
F
G
GES
A
B
C
D
E
F
G
Appartement à LE TOUQUET-PARIS-PLAGE
Appartement à LE TOUQUET-PARIS-PLAGE
Appartement à LE TOUQUET-PARIS-PLAGE
Appartement à LE TOUQUET-PARIS-PLAGE
Appartement à LE TOUQUET-PARIS-PLAGE
Appartement à LE TOUQUET-PARIS-PLAGE
Appartement à LE TOUQUET-PARIS-PLAGE
Appartement à LE TOUQUET-PARIS-PLAGE
Géorisques

Les informations sur les risques auxquels ce bien est exposé sont disponibles sur le site Géorisques : www.georisques.gouv.fr

Ce site est protégé par hCaptcha Politique de confidentialité et Conditions d’utilisation s’appliquent.

En poursuivant votre navigation sans modifier vos paramètres, vous acceptez l'utilisation de cookies susceptibles de réaliser des statistiques de visite. Cliquez ici pour plus d'informations